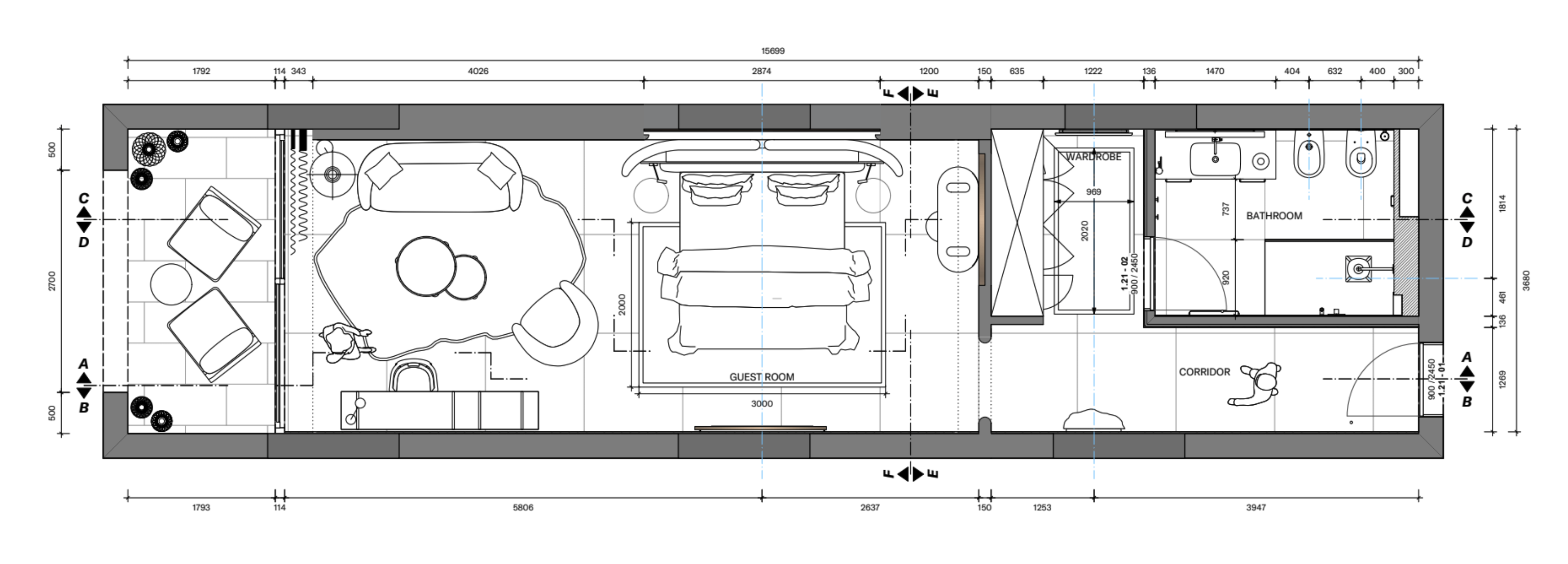
convert this floor plan into a realistic isometric 3d view of a full house show the space from an elevated angle with furniture walls and details visible hotel room with bed and lounge in a mediterranean style with a sea view use the same furniture as shows on the plan do not change the orientation of the floorplan