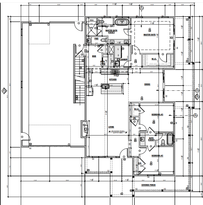
convert to basic 2d floorplan