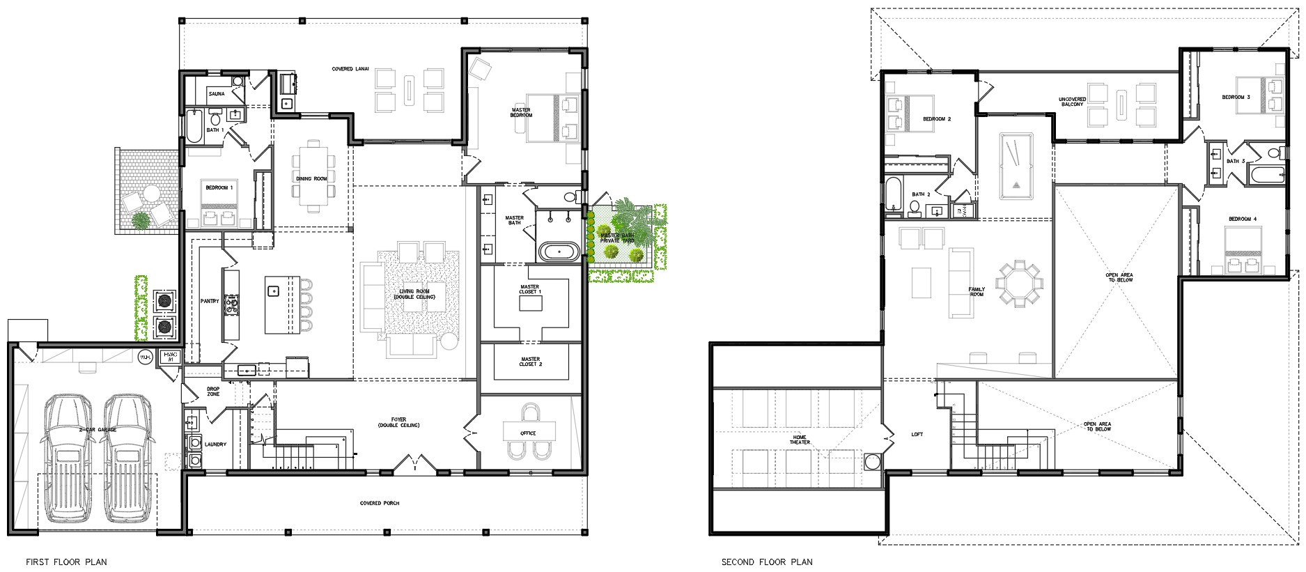
2 story house floor plans on first floor the floor is hardwood white oak everywhere the laundry and bathrooms have a nice light tiles the staircase to the second floor has a nice modern railing the master bathroom double shower has a nice shower glass with a free standing tub inside on the second floor the flooring is also white oak you can see the same staircase at the foyer below in the first floor you can see the living room from the second floor hallway with nice guardrails the home theater seating is facing to west