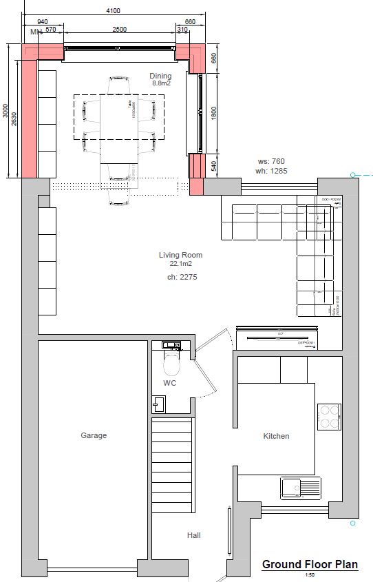
convert this floor plan into a realistic isometric 3d view of a full house show the space from an elevated angle with furniture walls and details visible do not change any walls and windows position kitchen position keep where it is just design the living and dining use the same furniture as shows on the plan do not change the orientation of the floorplan