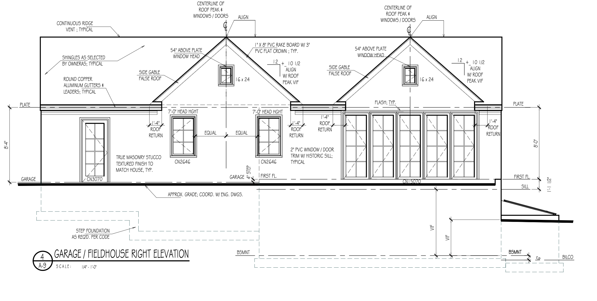
exterior shot a material accurate elevation rendering not a marketing rendering prioritize realism scale and restraint create an image using the following information and the architectural plan provided rendering style overview type photorealistic architectural elevation not conceptual lighting soft natural daylight slightly warm late morning feel shadows clean directional subtle not dramatic lens straight on elevation minimal perspective distortion mood modern farmhouse meets french english countryside estate material applications 1 main siding primary surface light vertical wood siding board and batten style tone soft warm white pale cream not stark white subtle grain texture visible slight natural variation to avoid flatness 2 stone base foundation material merrillstone mcgee blend color mix warm grays muted tans soft taupes important extend stone downward following grade like your second reference image no straight horizontal cutoff it should step naturally with terrain mortar slightly recessed light gray texture medium relief not overly rustic 3 roof material davinci slate roof color slate gray multi width laid straight matte finish no shine add subtle variation between shingles for realism 4 windows doors brand look marvin color pebble gray finish smooth low sheen grilles consistent with drawing do not modify pattern glass slightly reflective soft landscape reflection no mirror effect 5 large opening bi fold door same pebble gray as windows slim modern profiles glass dominant interior hint visible but minimal architectural details keep exact do not alter window sizes or alignment roof pitch or overhangs trim profiles garage openings keep all trim crisp white light to match siding family landscape integration follow grading from drawings foundation stone should visually anchor into slope planting style loose naturalistic not overly manicured low boxwoods soft grasses a few airy shrubs keep landscaping secondary to architecture environment sky soft blue with light haze trees green slightly desaturated avoid overly vibrant tones ground natural lawn with slight tonal variation rendering finish add very subtle imperfections slight tonal shifts in siding natural stone irregularity avoid over sharpening high contrast hdr look architecture