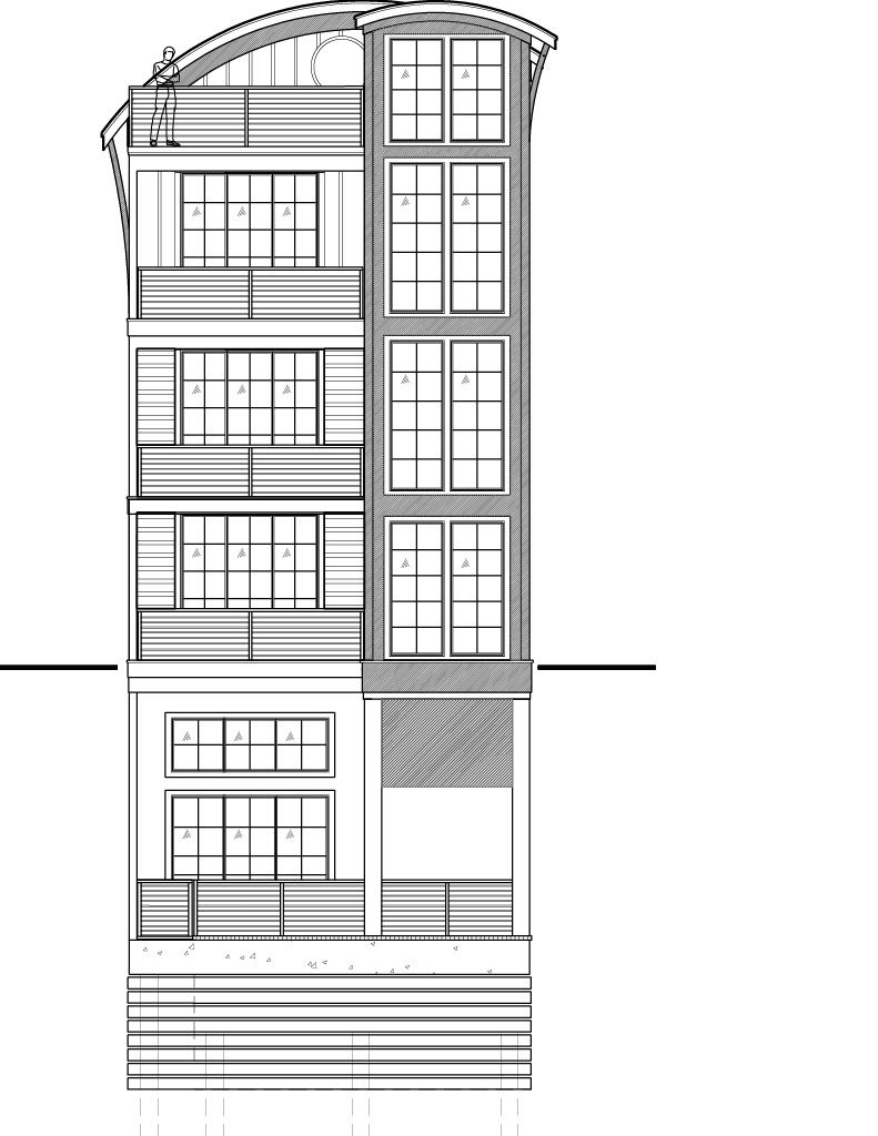
the building elevation is a multi story fa ade with a symmetrical yet contrasting design it has two distinct vertical sections on the right side there is a dark charcoal colored section featuring two levels of large windows with a small dark balcony railing on each floor on the left side there s a white section with similar large windows and a lighter metal railing for the balconies the roofline is gently curved and there s a circular window at the top center the ground level is open for parking with a central entrance door overall the left side is darker in color while the right side is light creating a balanced two tone effect