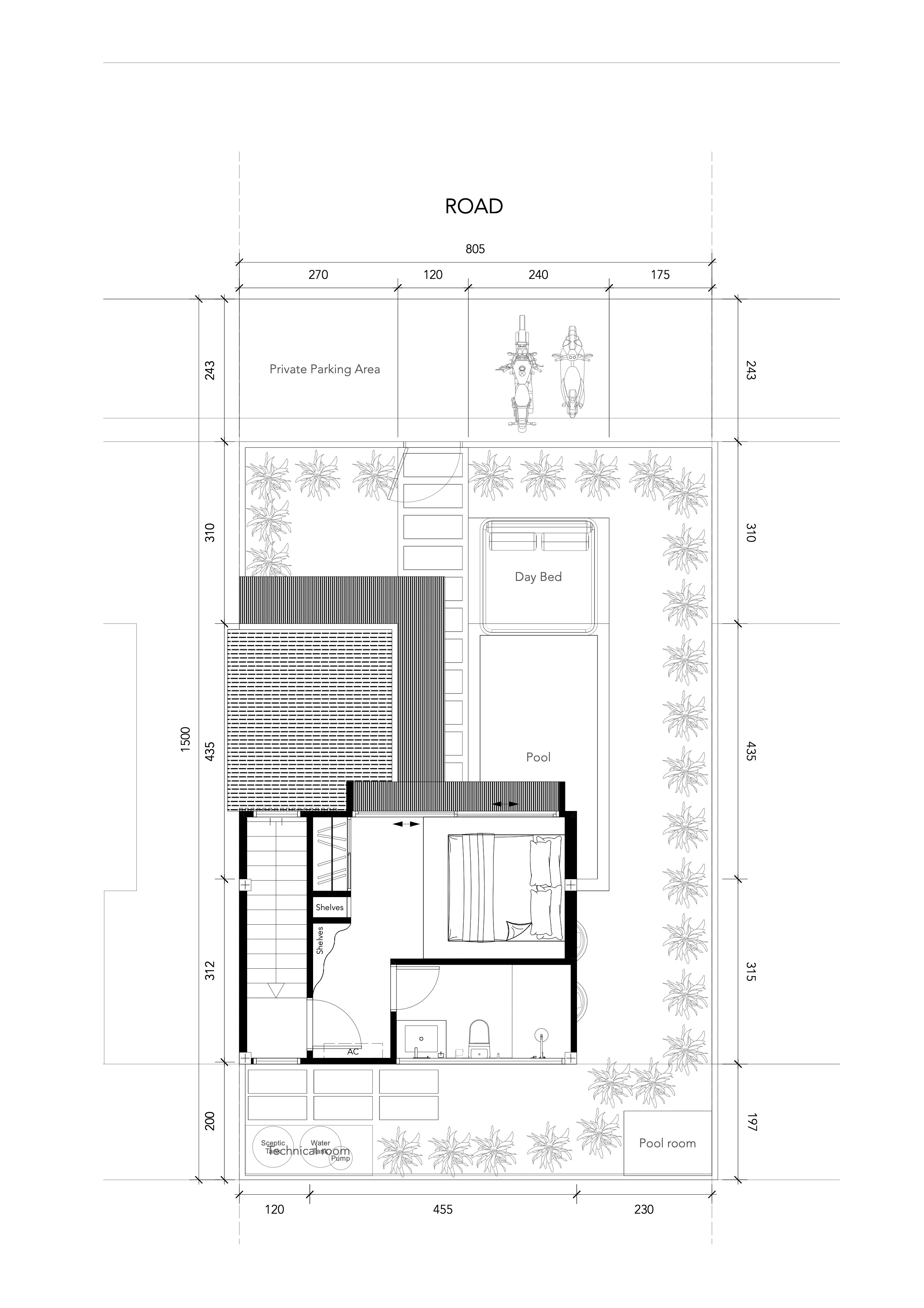
enhance this architectural floor plan top down plan view by improving materials textures shadows and graphic clarity while strictly keeping the image as a 2d architectural floor plan drawing style requirement very important this must remain a top down architectural floor plan not a perspective render do not convert the image into a 3d render or interior perspective maintain the plan view architectural presentation style only improve materials textures subtle shadows and graphic clarity the result should look like a high end real estate architectural floor plan with realistic materials not a sketch or a 3d rendering layout and geometry preservation do not modify the layout walls furniture positions or proportions do not mirror rotate flip or reinterpret any element of the plan the orientation of the plan must remain exactly the same as in the original image all architectural elements must remain exactly where they are dimensions and text preservation all dimensions numbers and annotations must remain exactly as they appear do not recreate rotate mirror flip or redraw any numbers numbers must remain perfectly readable and in the same orientation as the original image do not remove reinterpret or adjust any measurement text stair orientation lock the staircase must remain exactly in the same position and orientation as the original plan do not flip mirror or rotate the stairs the direction of the steps must remain identical to the original drawing only enhance the material texture of the stairs material matte light concrete same tone as the floor lower floor reference important a faint architectural underlay of the lower floor is visible in the drawing this lower floor is only a background reference layer and is not part of the current floor plan it must remain very light subtle and semi transparent similar to an architectural guide layer do not enhance modify add materials or add furniture to this lower floor underlay the roof of the first floor visible in the drawing should be rendered with black metal sheet roofing material the visual focus must be entirely on the top floor plan materials main floor surfaces matte light concrete with warm neutral tones furniture soft areas beige warm grey tones with subtle material texture roof visible from lower floor black standing seam metal sheet roofing strict object preservation do not change the shape of furniture or architectural elements all objects must keep their original geometry and dimensions do not reinterpret any element of the plan goal improve material realism textures and subtle architectural shadows while preserving the exact architectural plan drawing no layout changes no object reinterpretation no perspective rendering no geometry modifications no flipped elements no rotated numbers