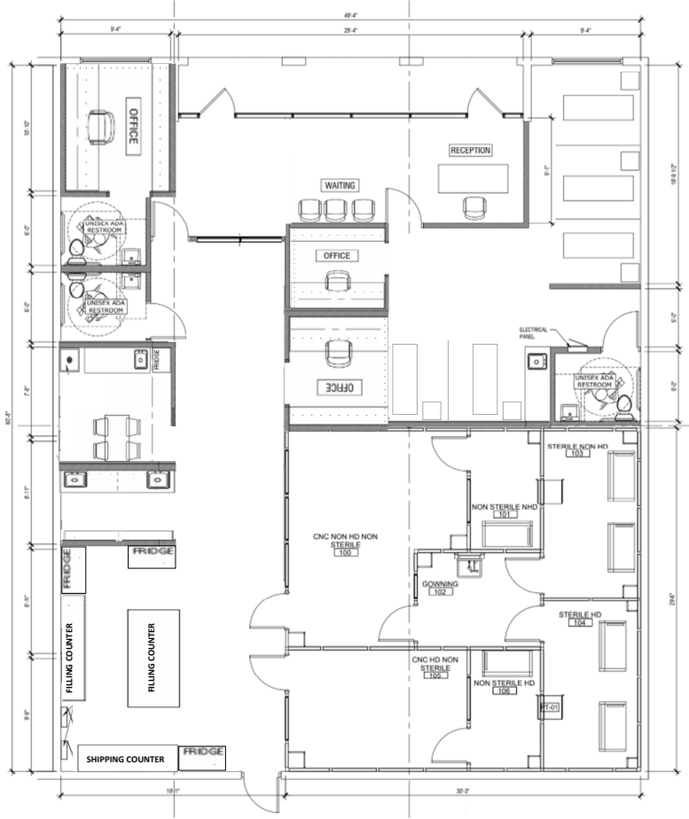
convert this floor plan into a realistic isometric 3d view of a full house show the space from an elevated angle with furniture walls and details visible this is an industrial space and the bottom right corner that represents a third of the space is a pharmaceutical lab use the same furniture as shows on the plan do not change the orientation of the floorplan