archsynth
Sign Up
Open main menu
Image to 3d model
Compare
Testimonials
Contact us
Log in
→
Signup
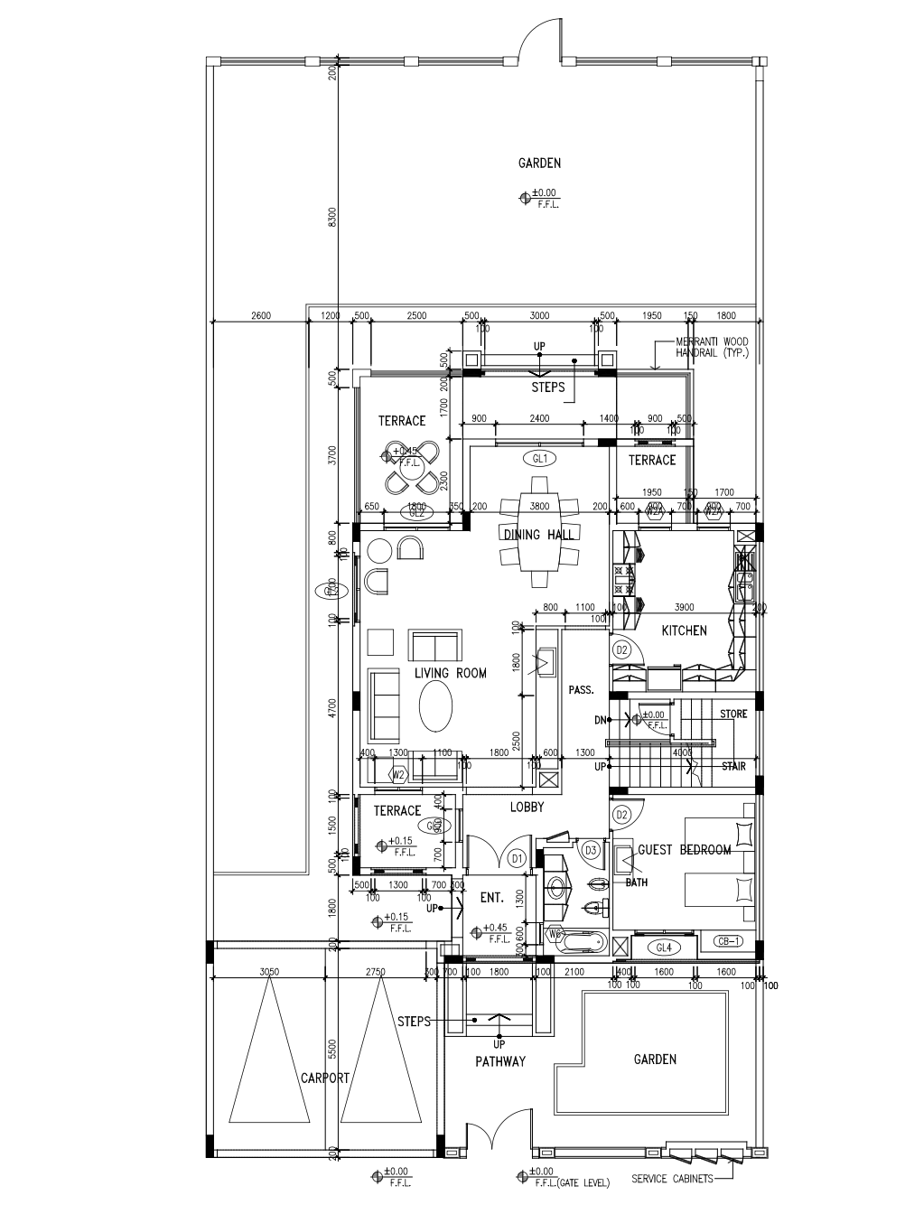
Archsynth generation
Input image
Copy Prompt
make 2d floorplan from my picture in 2d dwg file architecture
by Words
strength 100
seed 6158
Start Creating Renders Now
Related Posts
Start Creating Renders Now
View more