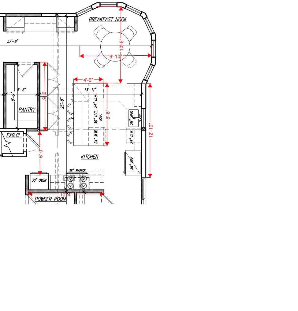
convert this floor plan into a realistic isometric 3d view of a kitchen show the space from an elevated angle with furniture walls and details visible flooring is white oak 7 wide planks lower cabinets at range stove insert are light white oak cabinets at center island is light white oak all other cabinets are painted white countertop is white carrera marble sink is 30 white farm house layout should match floor plan use the same furniture as shows on the plan do not change the orientation of the floorplan