archsynth
Sign Up
Open main menu
Image to 3d model
Compare
Testimonials
Contact us
Log in
→
Signup
Archsynth generation
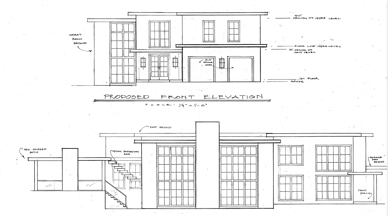
Input image
Copy Prompt
render this plan in the japandi style in a heavily wooded piece of land with a pond in front ma
Elevations
strength 75
seed 5068
Start Creating Renders Now
Related Posts
Start Creating Renders Now
View more