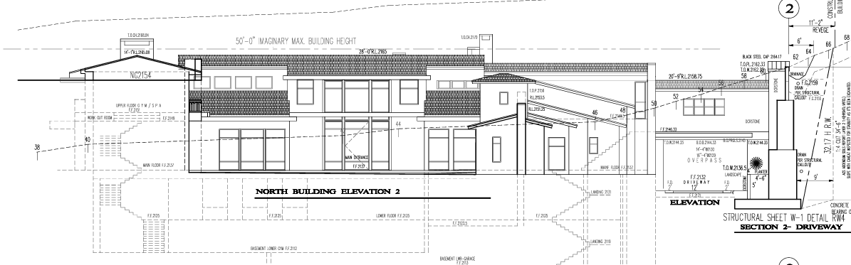
please copy this house size and geometry size and do not change anything about the style or structure use the reference photo for a color scheme the large glass windows is where the front door is please make a nice entry way and desert lush cali lawn