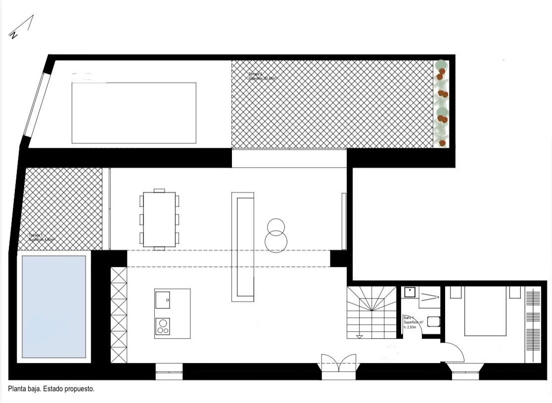
convert this floor plan into a realistic isometric 3d view of a full house show the space from an elevated angle with furniture walls and details visible mediterranean modern villa floor plan isometric render white stucco walls natural wood light stone flooring soft sunlight warm tones minimal furniture indoor outdoor living realistic pool coastal style architecture use the same furniture as shows on the plan do not change the orientation of the floorplan