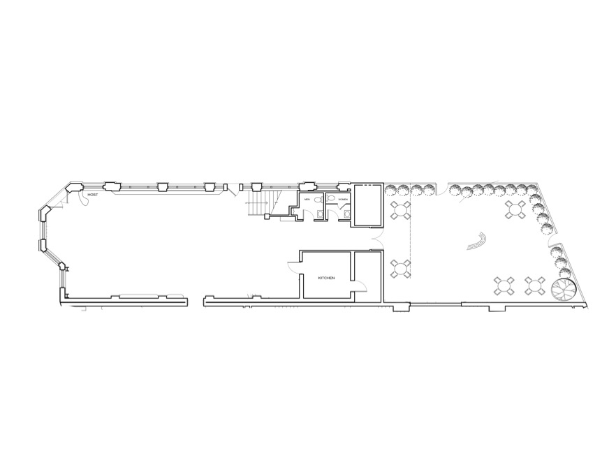
convert this floor plan into a minimalist isometric 3d view of a full house show the space from an elevated angle with furniture walls and details visible floor plan for a restaurant show optimal seating arrangements and a location for a bar use the same furniture as shows on the plan do not change the orientation of the floorplan