archsynth
Sign Up
Open main menu
Image to 3d model
Compare
Testimonials
Contact us
Log in
→
Signup
Archsynth generation
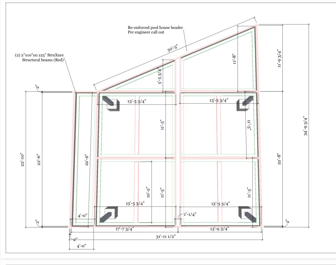
Input image
Copy Prompt
based off these dimensions design outdoor kitchen layout the left side faces a mountain view the right side faces the pool the back is attached to poolhouse with glass doors the front faces the main house
Maintain Colors (v2)
strength 75
seed 10
Start Creating Renders Now
Related Posts
Start Creating Renders Now
View more