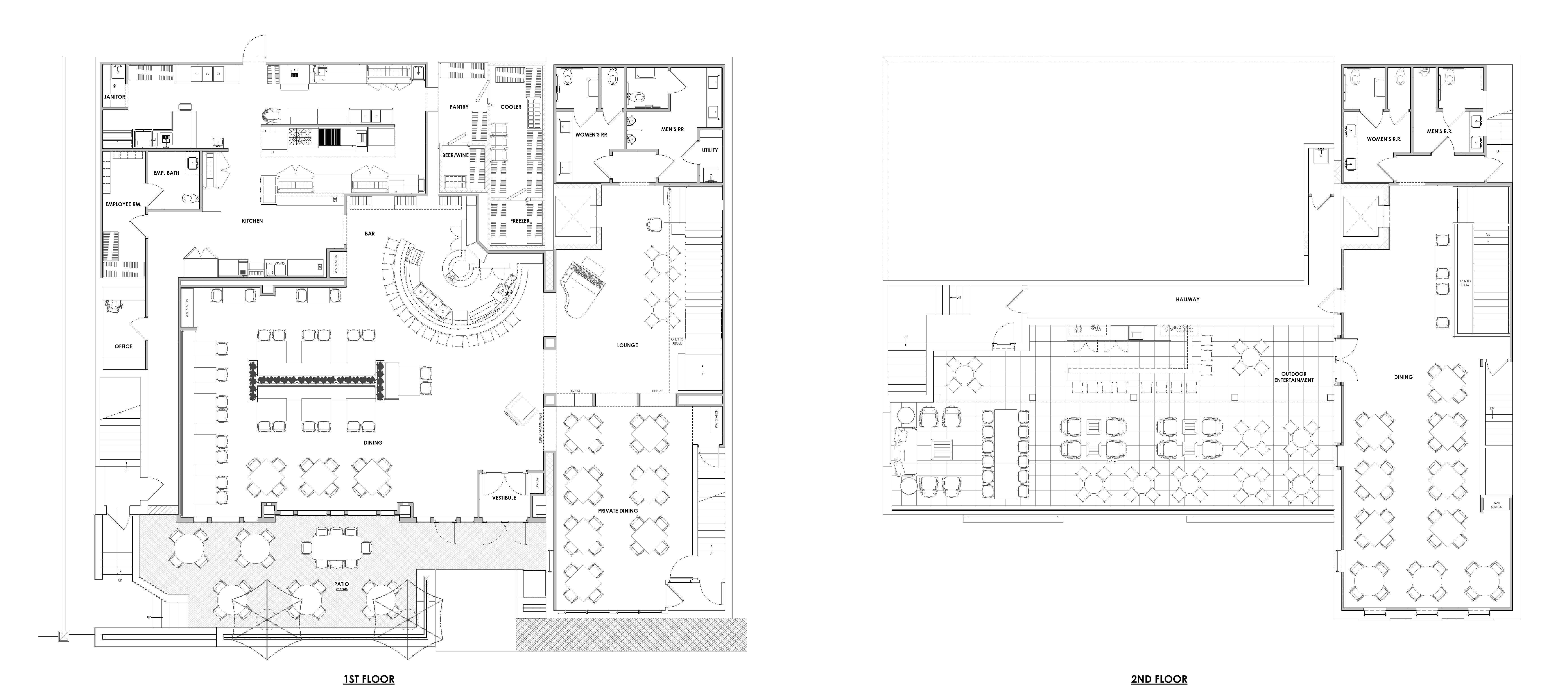
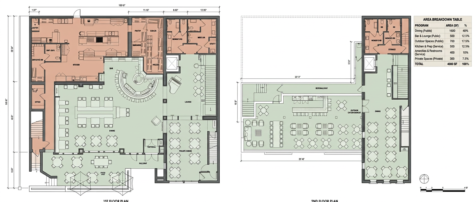
enhance this architectural floor plan into a clean professional presentation drawing strict maintain the exact geometry wall locations room sizes furniture layout bar configuration kitchen layout stairs doors and windows exactly as shown do not redesign move or reinterpret any elements do not add or change materials finishes textures or flooring floor treatment control important keep all floor areas a uniform white or very light neutral tone do not add color shading textures patterns or material differentiation to any floor surfaces do not distinguish between different floor types maintain a consistent flat background across the entire plan refine the drawing with clear architectural line hierarchy darker poche for primary and exterior walls clean consistent lineweights for walls furniture and fixtures simplified crisp linework throughout improve overall clarity and readability while preserving the original drawing clean up furniture blocks and fixtures so they appear consistent and refined but do not change their layout or design enhance room labels to be clean and legible with a subtle professional font style keep the drawing strictly monochrome black white and gray tones only no color add very subtle shadows only if necessary for clarity but keep the plan flat and diagrammatic maintain a minimal modern architectural graphic style suitable for a professional presentation set no added landscaping no added entourage and no stylistic embellishments beyond linework refinement