archsynth
Sign Up
Open main menu
Image to 3d model
Compare
Testimonials
Contact us
Log in
→
Signup
Archsynth generation
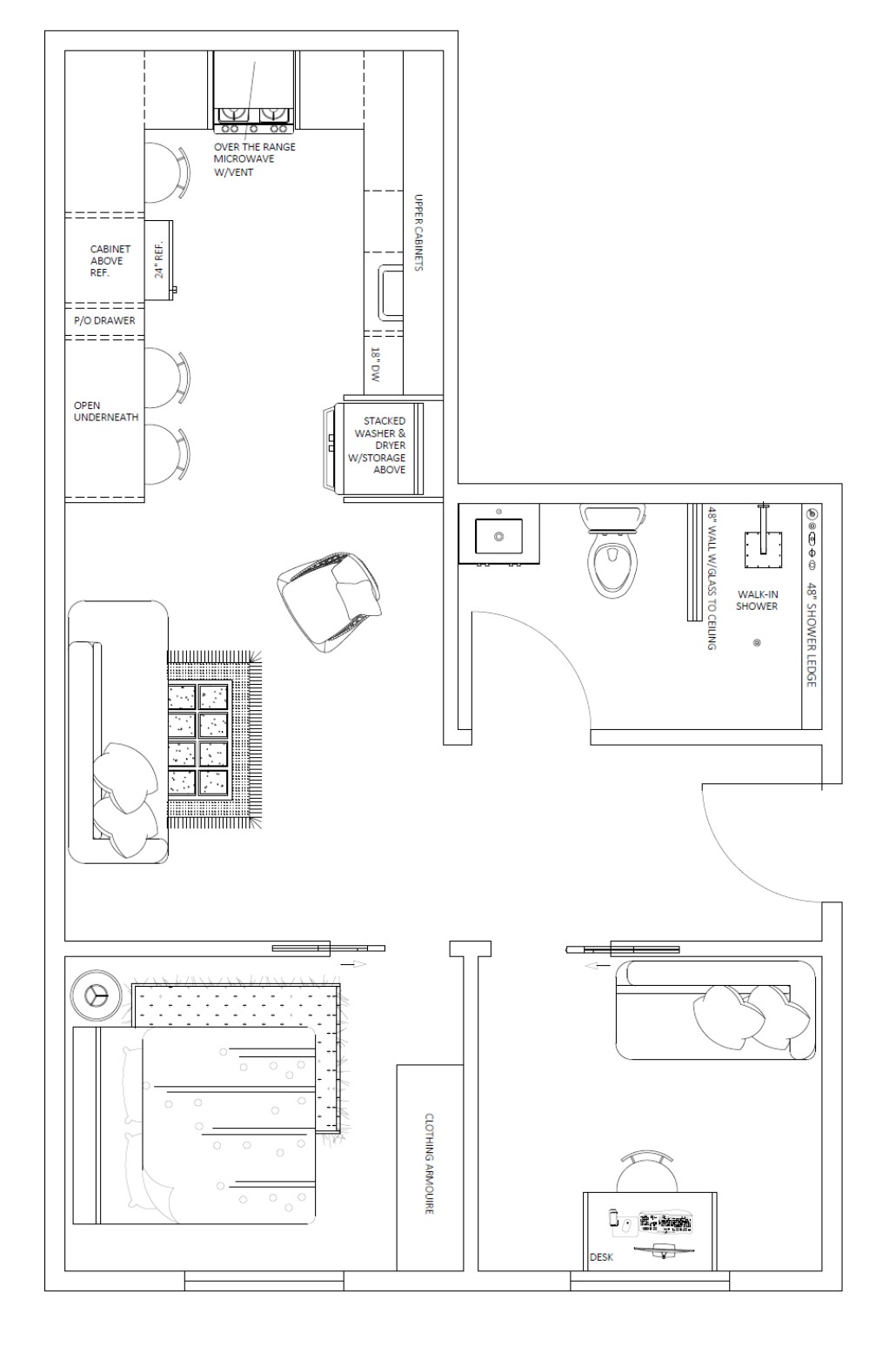
Input image
Copy Prompt
convert this floor plan into a realistic isometric 3d view of a full house show the space from an elevated angle with furniture walls and details visible use the same furniture as shows on the plan do not change the orientation of the floorplan
To Isometric
strength 75
seed 10
Start Creating Renders Now
Related Posts
Start Creating Renders Now
View more