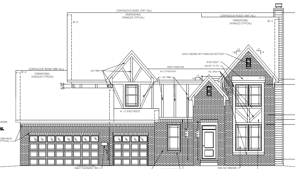
make a 3d elevation of this home on a wooded lot that slopes to the rear and has landscaping shingles are charcoal gutters are black windows with grids are black front door is tricorn black brick is coral blend siding is functional gray color trim is snowbound color