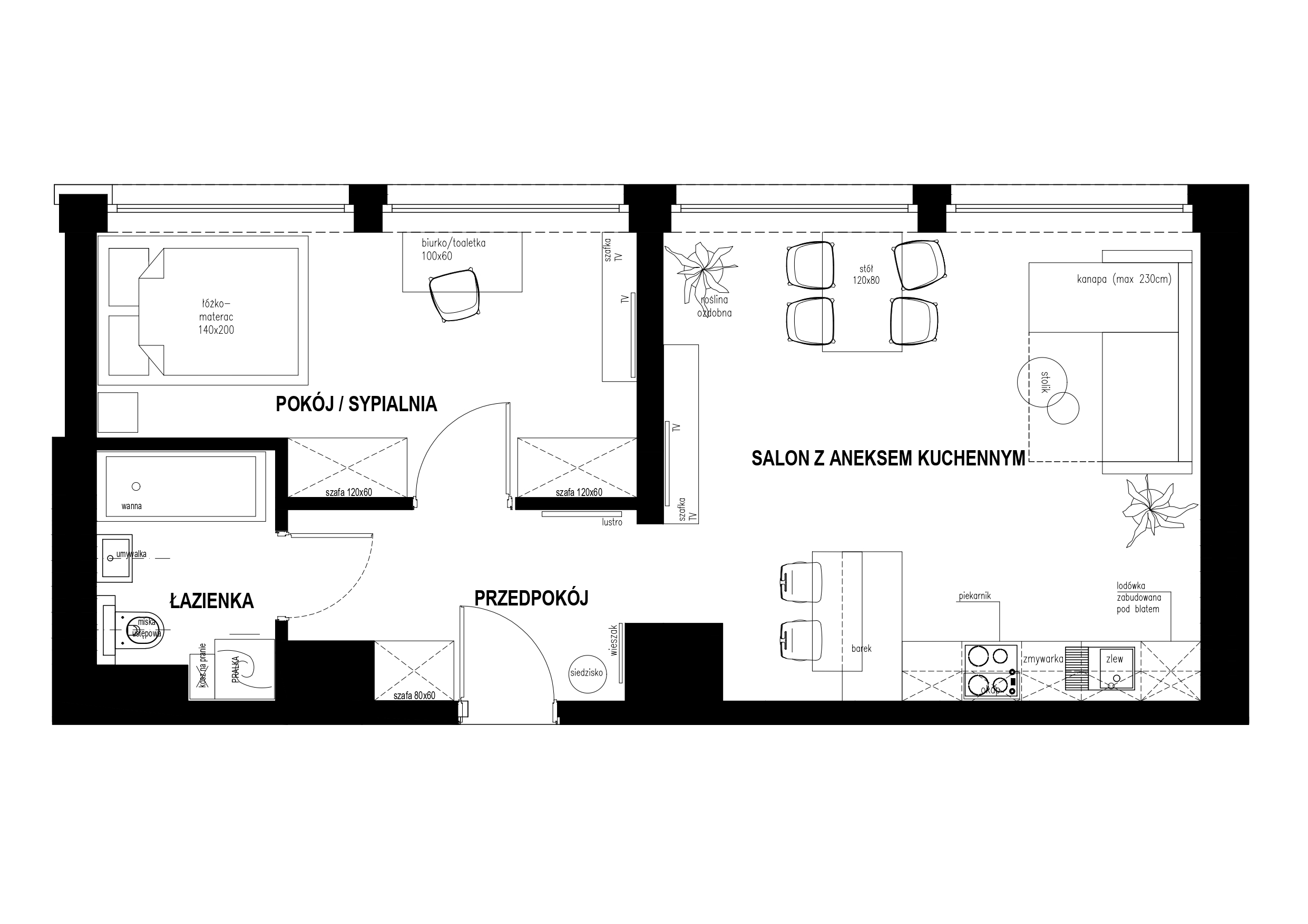
convert this floor plan into a realistic isometric 3d view of a full house show the space from an elevated angle with furniture walls and details visible design a loft style apartment do not change the settings of the devices in the bathroom change the window divisions remove subtitles use the same furniture as shows on the plan do not change the orientation of the floorplan