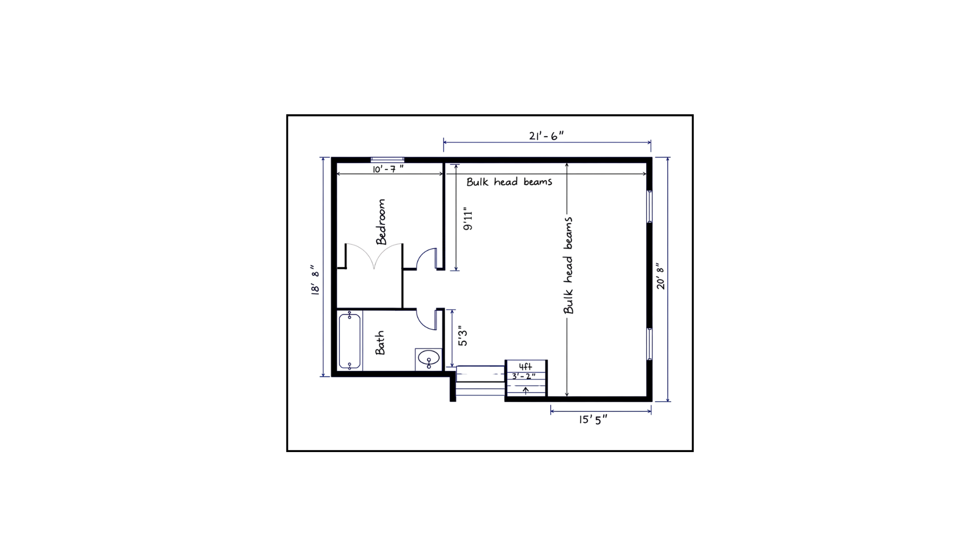
remove background