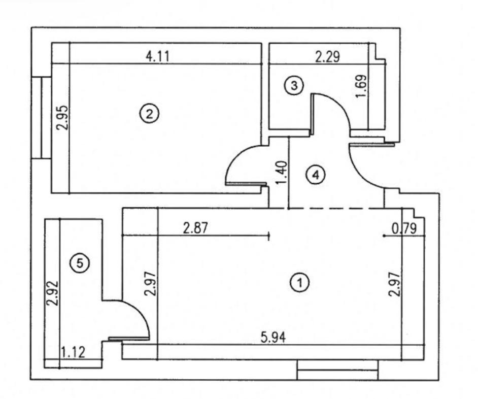
numarul 1 este bucatarie living numarul 2 este dormitor numarul 3 este baie numarul 4 este hol numarul 5 este balcon