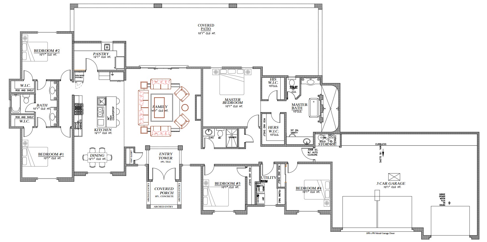
convert this floor plan into a realistic isometric 3d view of a full house show the space from an elevated angle with furniture walls and details visible convert this floor plan into a realistic high quality 3d isometric floor plan render from a top down perspective features 3d half extruded wall waist high to show interior layout includes realistic 3d furniture contemporary sofas dining sets and detail beds materials include polished marble flooring and realistc tiled bathrooms natural soft daylight coming from the side creating gentle shadows professional architectural visualization photorealistic textures clean lines use the same furniture as shows on the plan do not change the orientation of the floorplan