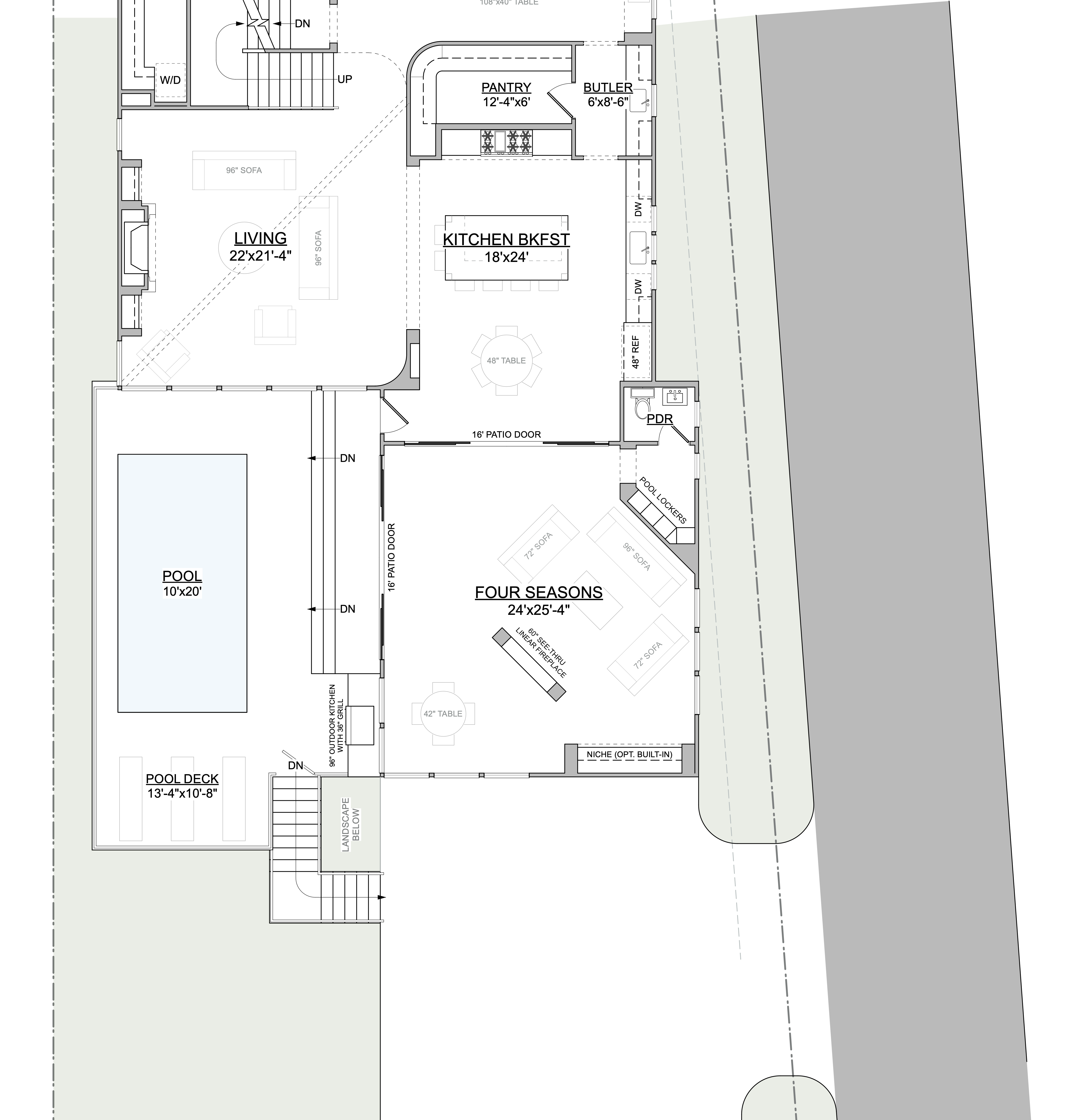
convert this floor plan into a realistic isometric 3d view of a full house show the space from an elevated angle with furniture walls and details visible wood floors in living room and kitchen breakfast room 24 x24 tile in four seasons room set on 45 degree angle pool deck elevation 18 below house floor level rear yard 112 below house floor level use the same furniture as shows on the plan do not change the orientation of the floorplan