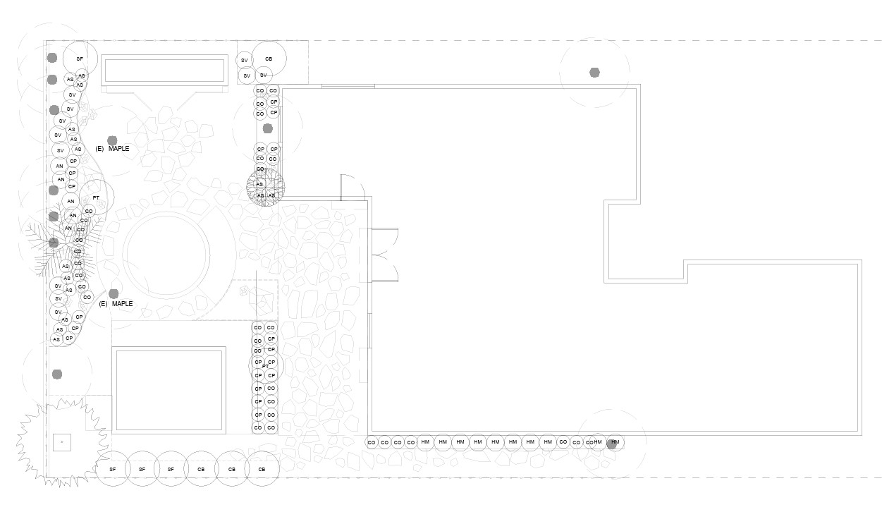
provide a render of a california ranch style track home with an isometric view of this plan located in the center is a cedar hot tub with a 10 diameter with an adacent wood deck step area that has a 6 rise the west side of the drawing consists of an existing cmu wall with existing trees called out in the plan and new planting varieties with a legend that identifies the chosen plant paleette you will see flagstone pavers placed around the yard and landscape boulders aswell additionally the planting area directly west of the cedar hot tub has a corten steel raised planter with a wood bench integrated into the steel approximately 20 above ground there is another raised corten steel planter that has the plant blocks co cp pt that planter is 17 in ht as well most of the ground cover around the flagstone pavers is california gold dg but use a mix of pebbbles cobble and mulch where their is proposed planting the top of the page is north for orientation purposes