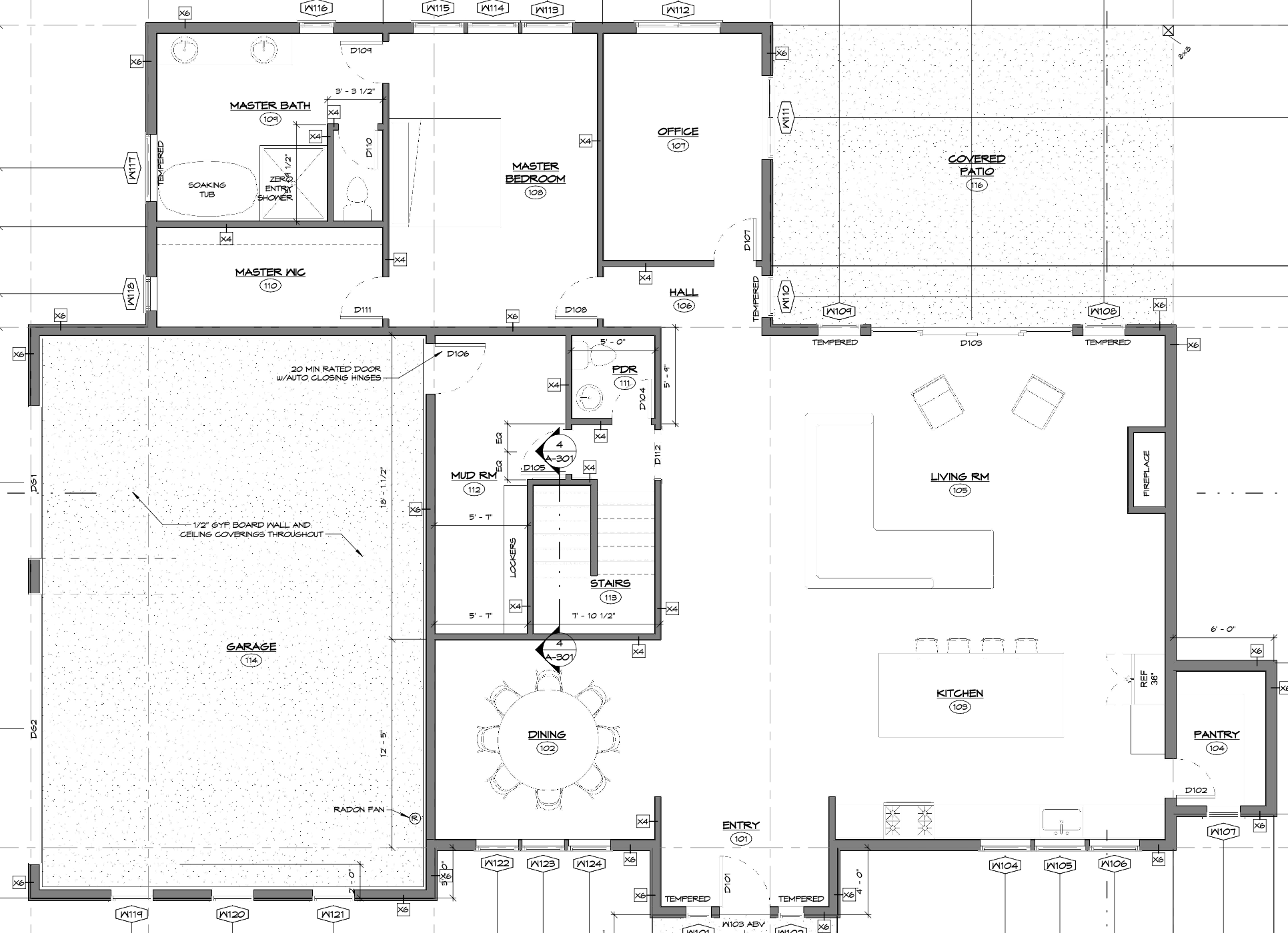
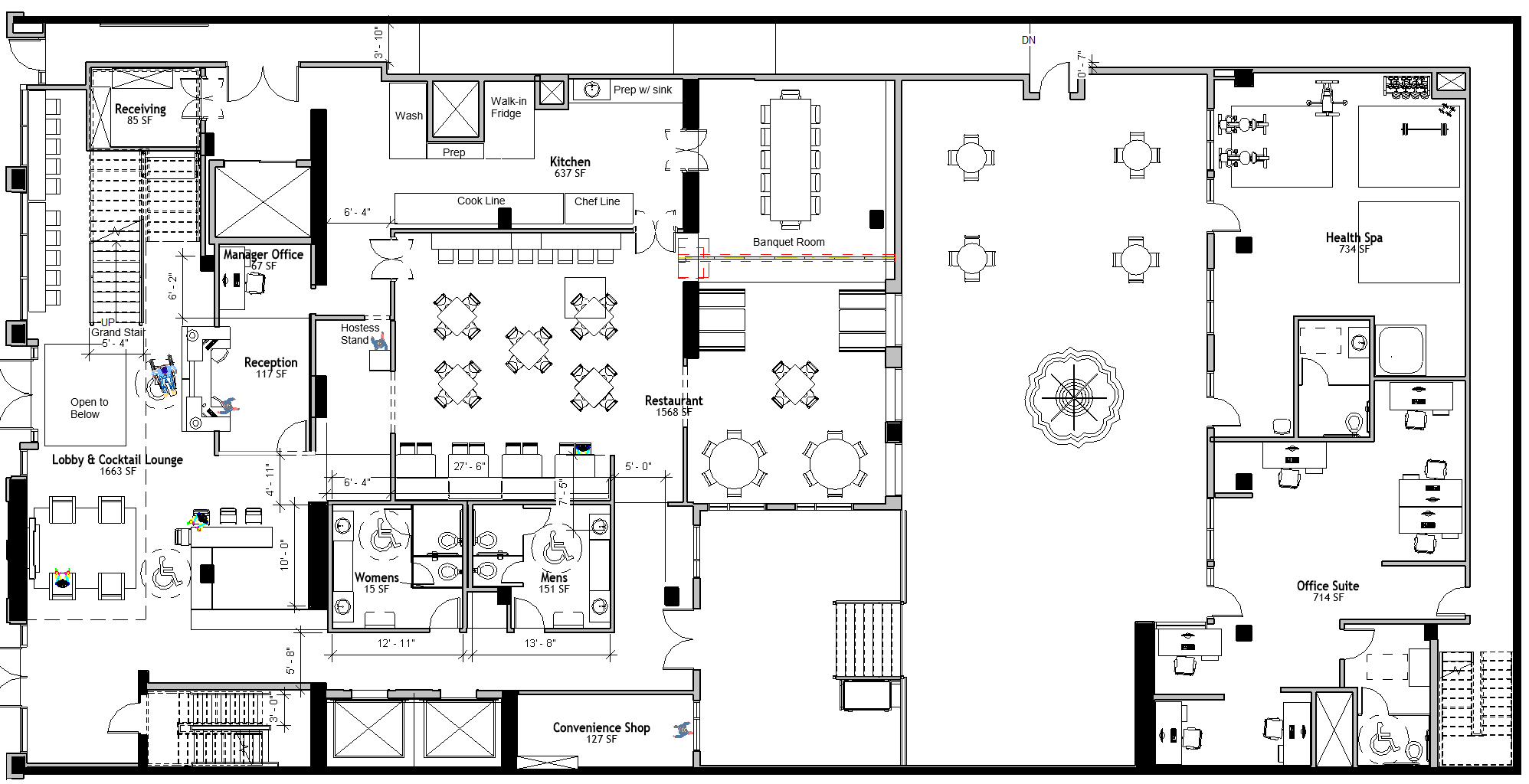
convert this floor plan into a realistic isometric 3d view of a full house show the space from an elevated angle with furniture walls and details visible it s a hotel with rich millwork library shelves and wainscot trim everywhere use the same furniture as shows on the plan do not change the orientation of the floorplan