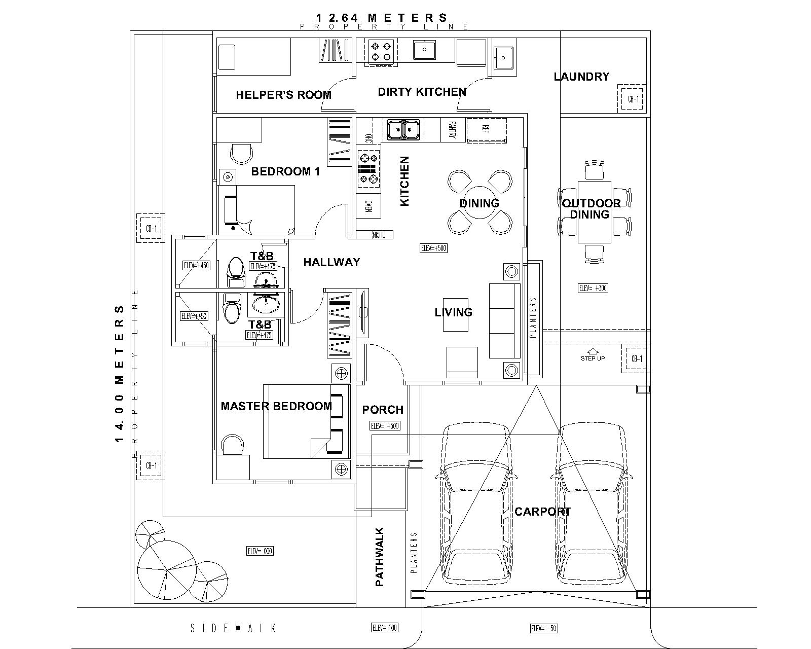
convert this 2d cad floor plan into a realistic top view 3d render show textures furniture flooring walls doors and windows consistent with a modern tropical house maintain accurate room layout and proportions from the drawing use natural daylight soft shadows and realistic materials