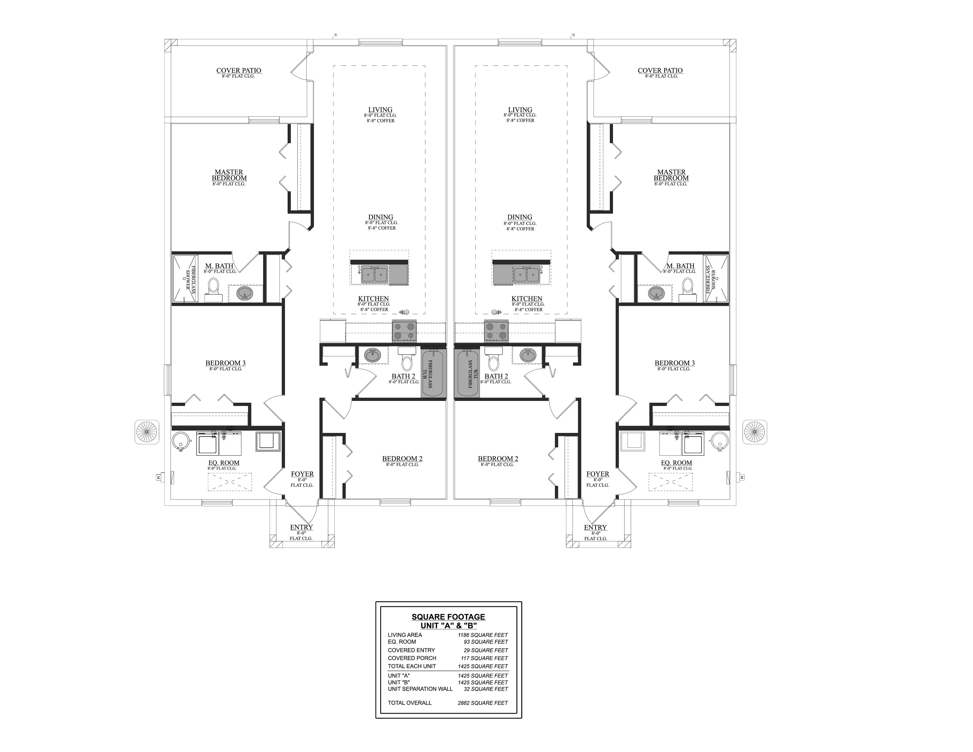
convert this floor plan into a realistic isometric 3d view of a full house show the space from an elevated angle with furniture walls and details visible convert this floor plan into a realistic isometric 3d view of a full house show the space from an elevated angle with furniture walls and details visible render a beautiful house interior based on a blueprint layout use calming earth tones for the walls like soft beige and sandy taupe incorporate rich wooden textures for the floors and furniture with a warm oak finish create a cozy and inviting atmosphere with ambient lighting in soft white tones use neutral grays and whites for kitchen and bathroom fixtures and add touches of greenery for a natural feel ensure the space feels spacious and serene with a sense of modern elegance throughout the design use the same furniture as shows on the plan do not change the orientation of the floorplan and please follow the floorplan do no change use the same furniture as shows on the plan do not change the orientation of the floorplan