archsynth
Sign Up
Open main menu
Image to 3d model
Compare
Testimonials
Contact us
Log in
→
Signup
Archsynth generation
Input image
Mood Board
Copy Prompt
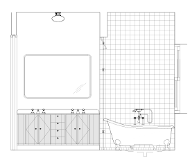
exterior shot green zellige tile shower all around only on the right side stone top vanity with wood vanity ceiling flush mount from in common with moody natural
Mood Board
strength 75
seed 1558
Start Creating Renders Now
Related Posts
Start Creating Renders Now
View more