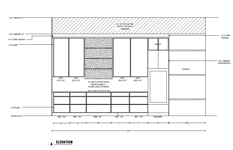
light color wood grain lower cabinets with white upper cabinets