archsynth
Sign Up
Open main menu
Image to 3d model
Compare
Testimonials
Contact us
Log in
→
Signup
Archsynth generation
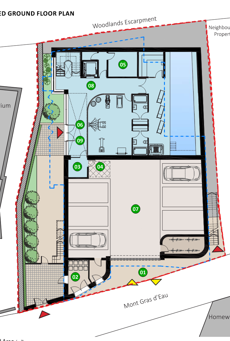
Input image
Copy Prompt
interior from the top architecture
by Architect
strength 75
seed 922
Start Creating Renders Now
Related Posts
Start Creating Renders Now
View more