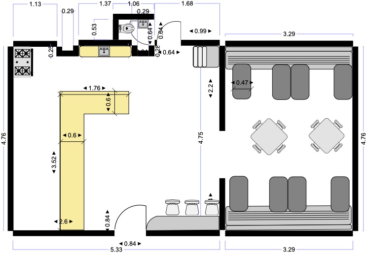
use the uploaded floor plan as the base and design a warm rustic coastal seafood restaurant interior matching the reference image style with the left side as an open kitchen and l shaped central service counter clad in reclaimed timber with metal pipe detailing and a glass seafood display a clear ordering circulation zone in front and a dining area on the right with built in timber bench seating along the perimeter and small tables in the center treat the 5 33m bottom wall and 3 29m bottom wall as full height glazed windows bringing natural light into the space use aged timber flooring and wall cladding stainless steel in the kitchen nautical decor such as nets rope and anchors chalkboard style hanging menu boards above the counter and warm ambient lighting with pendant fixtures and lantern style wall lights to create a cozy authentic fish market restaurant atmosphere