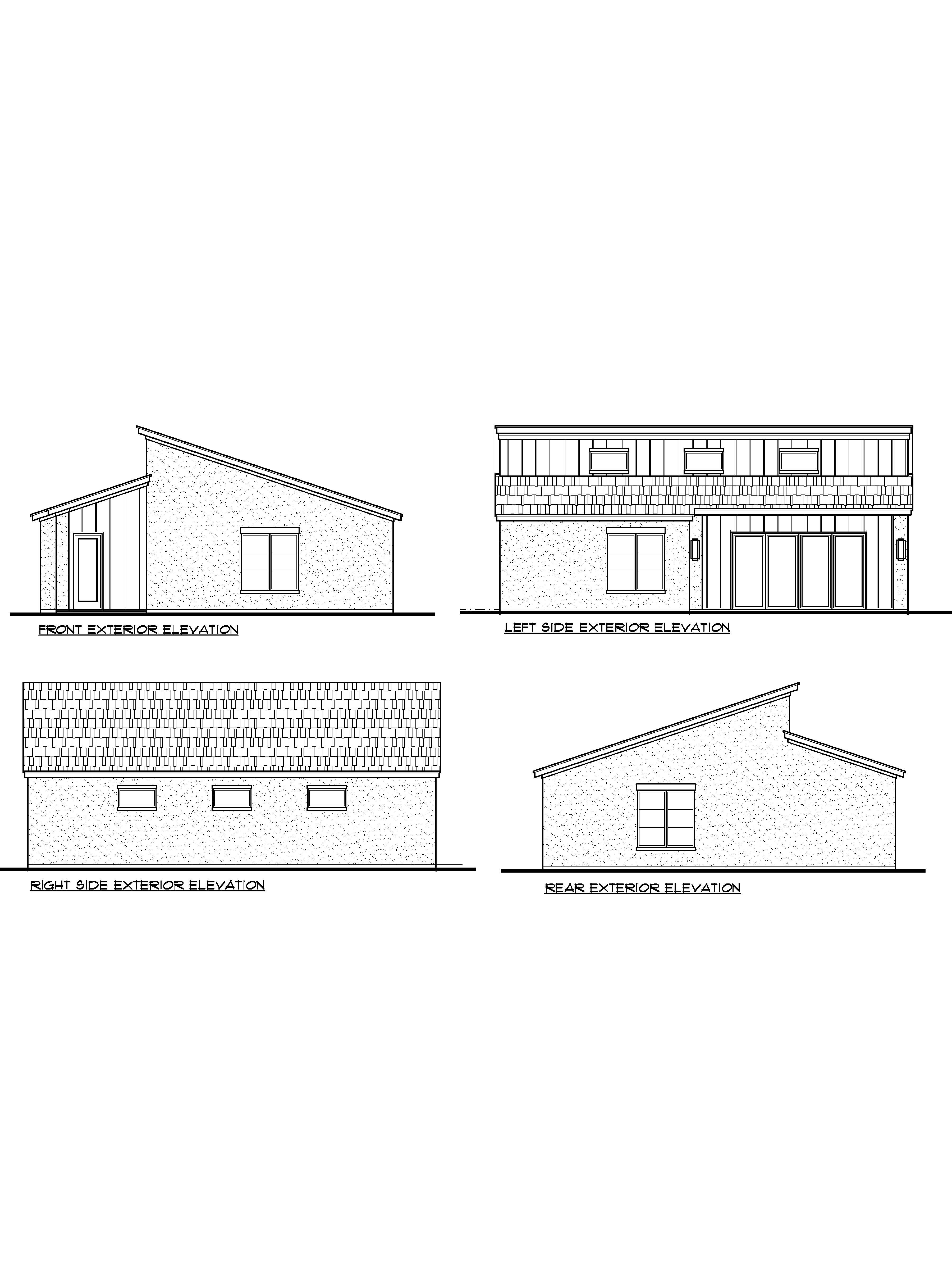
black roof white paint dark gay vertical siding