archsynth
Sign Up
Open main menu
Image to 3d model
Compare
Testimonials
Contact us
Log in
→
Signup
Archsynth generation
Input image
Copy Prompt
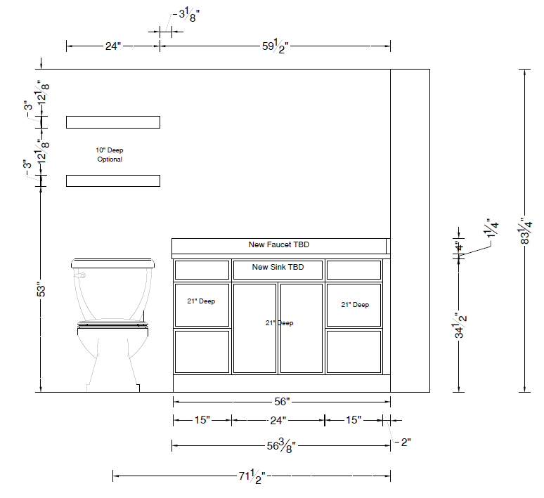
cabinetry to be a slim style color chaulk white two floating shelves above the toilet on the wall
Elevations
strength 75
seed 10
Start Creating Renders Now
Related Posts
Start Creating Renders Now
View more