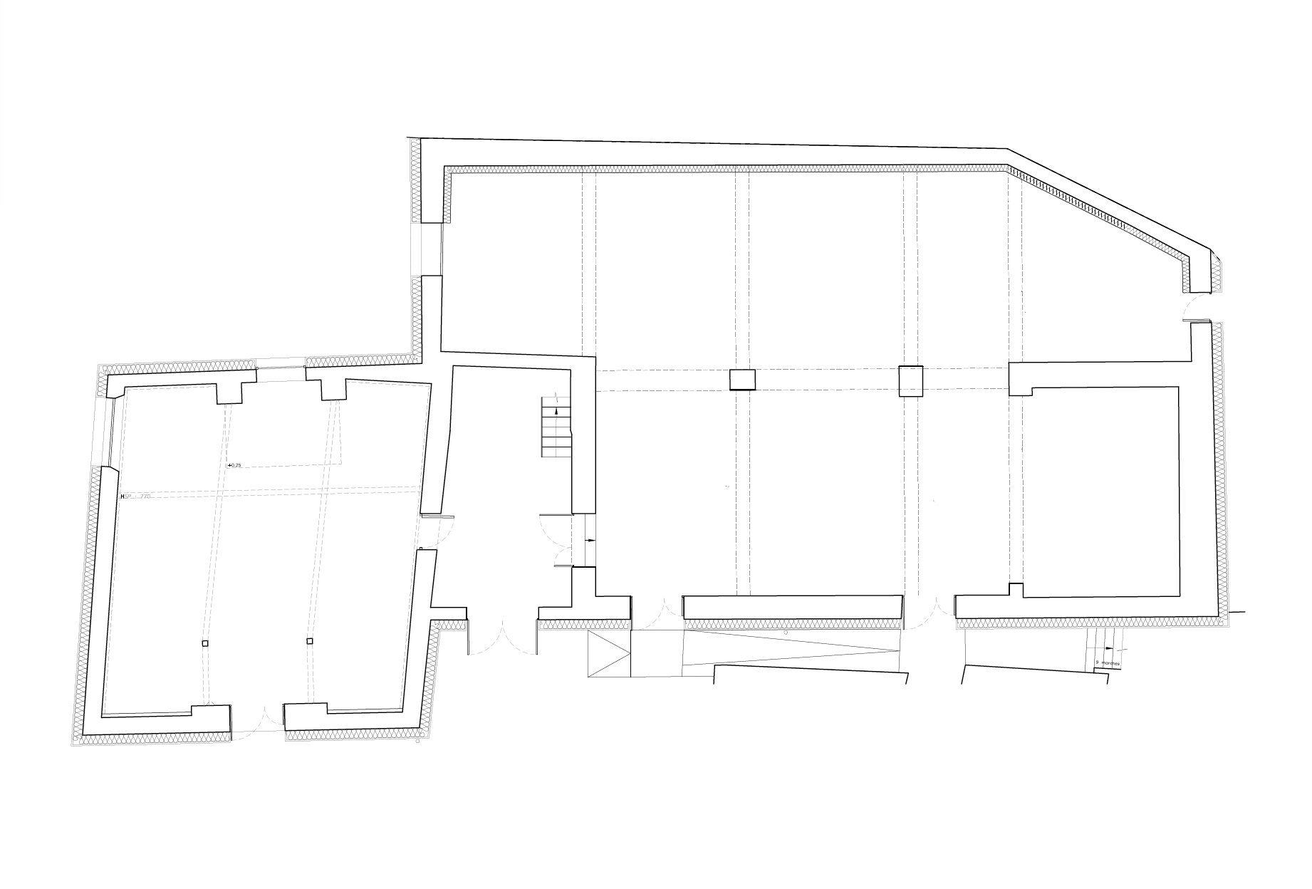
make this into an ecological and environmental hub with a terrace off the small rectangular building that overlooks the river and has a cut out to look over the river below the larger room is divided in two the lower half with the two openings on one wall is a museum display area describing the local wildlife the other half at the top by the deck is sunken below ground with windows that look into the river underground and watch it flow by place furniture facing the windows for people to sit and view the water and animals inhabiting it finally in the small rectangle building make a labratory space for dissecting and discovering the environments intricacies make all of these furnishing black and white and autocad style design as an architectural plan uses these descriptions to make an architectural plan layout of the space make this an autocad plan not an imagery collage