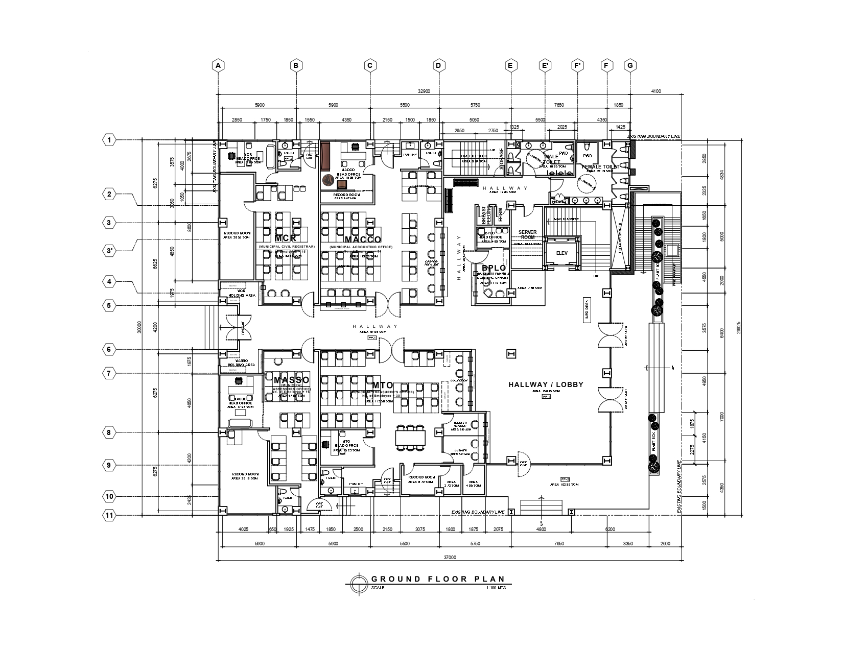
interpret this 2d floor plan into a precise 3d architectural model preserve all spatial relationships and exact proportions extrude walls with correct heights e g 2 7m 3m maintain accurate wall thicknesses and place doors and windows exactly as shown including orientation and swing generate a clean structural shell with floors ceilings beams if indicated and columns apply realistic but neutral materials white walls light flooring to highlight form rather than style add minimal but functional furniture scaled to standard sizes to demonstrate circulation and usability render the model with soft daylight minimal shadows and orthographic or isometric view for clarity produce a clean professional 3d architectural visualization derived directly from the provided plan