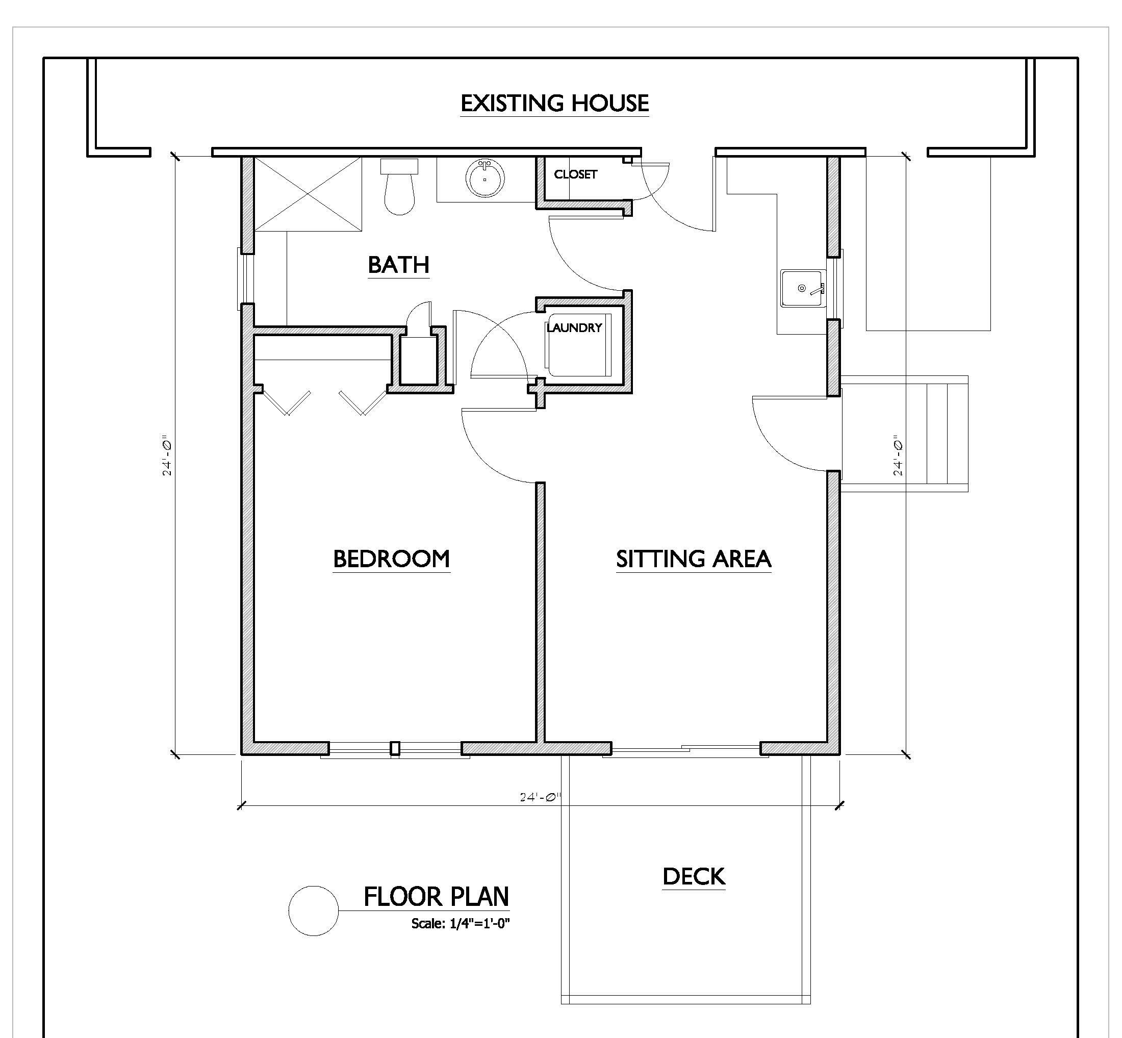
visualize furniture layout inside the provided floor plan using accurate room measurements use the dimensions shown to scale all furniture proportionally and place realistic household furnishings that match the function of each room maintain proper walking clearance minimum 36 inches where applicable door swing clearance and natural traffic flow between spaces furnish each room with practical modern residential furniture sized to real world standards bedrooms bed nightstands dresser closet clearance living areas sofa chairs coffee table tv wall spacing kitchen table island seating and circulation space bathrooms fixtures with code appropriate spacing show furniture in a top down architectural view aligned with the floor plan do not change wall locations or room sizes only add scaled furniture based on measurements emphasize usability balance and realistic proportions use neutral styling and clean visualization suitable for architectural review