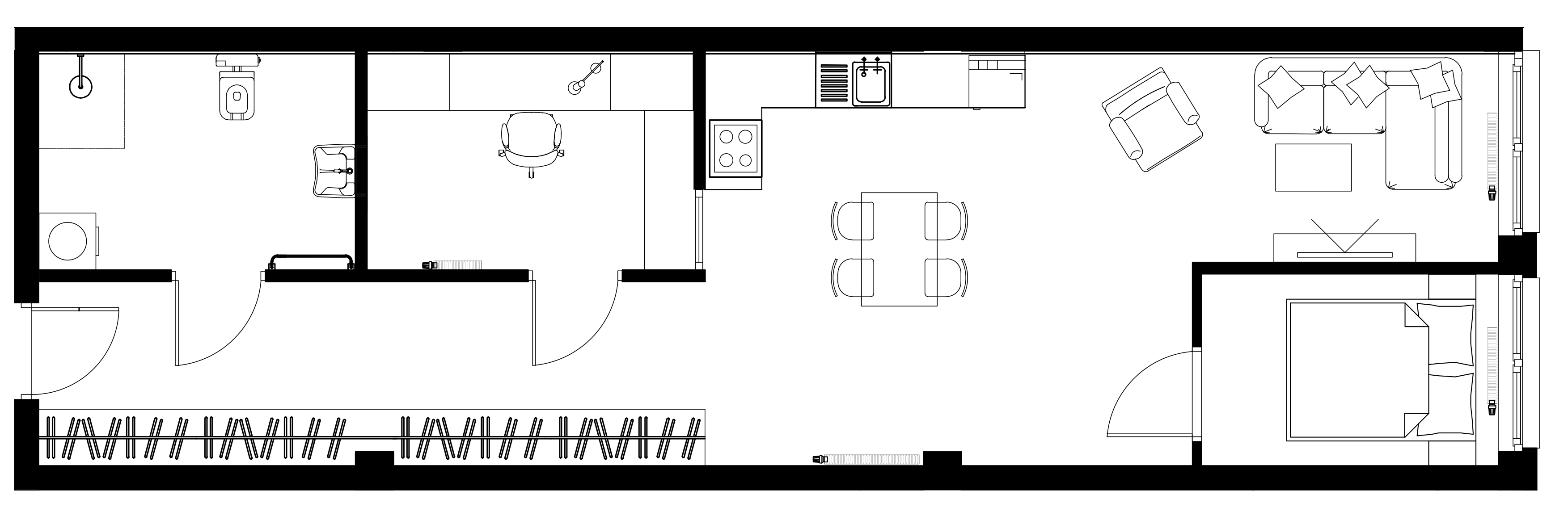
convert this floor plan into a realistic isometric 3d view of a full house show the space from an elevated angle with furniture walls and details visible create a stylish isometric apartment floor plan using only a palette of beige tones and natural wood do not use any other colors all walls should be white place a soft rug under the bed in the bedroom and another rug under the sofa in the living area the design should feel bright elegant cozy and visually appealing with a clean high end presentation suitable for a real estate or interior design showcase use the same furniture as shows on the plan do not change the orientation of the floorplan