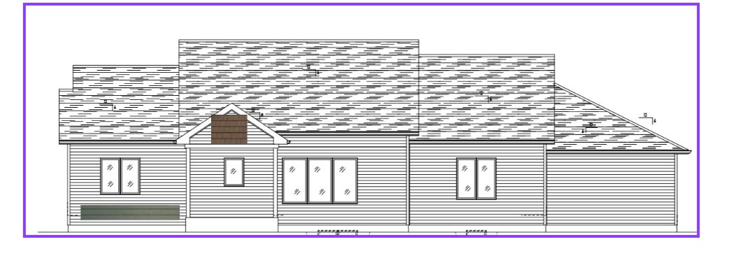
the lap siding is exterior portfolio cypress green there is no trim around the windows windows are dark brown with no window grids the roof is certainteed weathered wood the gable has chocolate brown shake shingles on it and make sure that the small gable is the roof over a patio