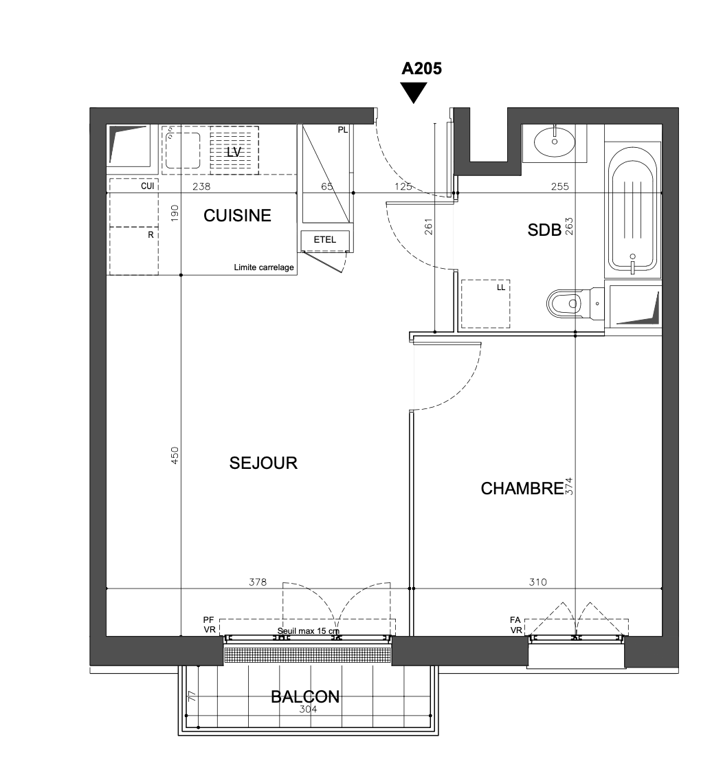
transforms this 2d plan into a realistic image respecting the placement of walls and objects and inserting scandinavian style furniture and decor place some furniture in s jour with a sofa a carpet a little table a tv and a beautiful withe kitchen with a wood work plan