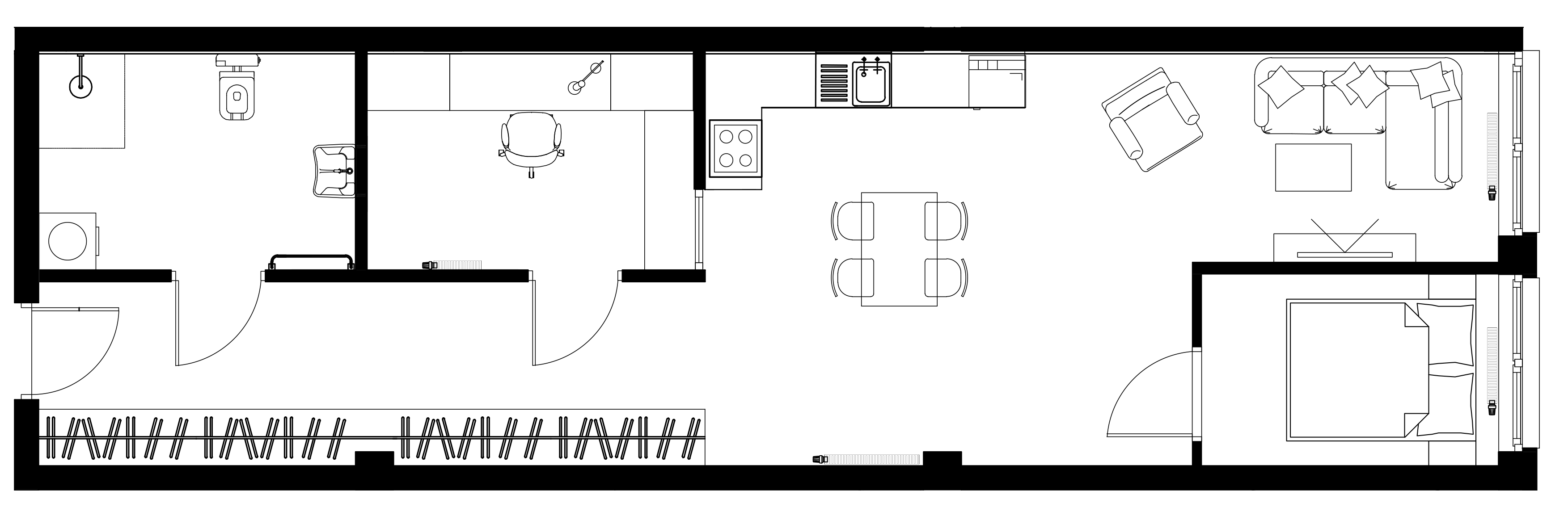
convert this floor plan into a realistic isometric 3d view of a full house show the space from an elevated angle with furniture walls and details visible create an exact top down apartment floor plan matching the original layout precisely reproduce the apartment exactly as it is with the same room arrangement walls openings proportions and overall structure use white walls only apply a neutral palette based exclusively on beige tones soft warm neutrals and natural materials do not use any bright or saturated colors keep the entire design clean elegant cohesive and realistic the final image should look like a refined architectural floor plan or interior layout visualization calm and minimal with no colorful accents use the same furniture as shows on the plan do not change the orientation of the floorplan