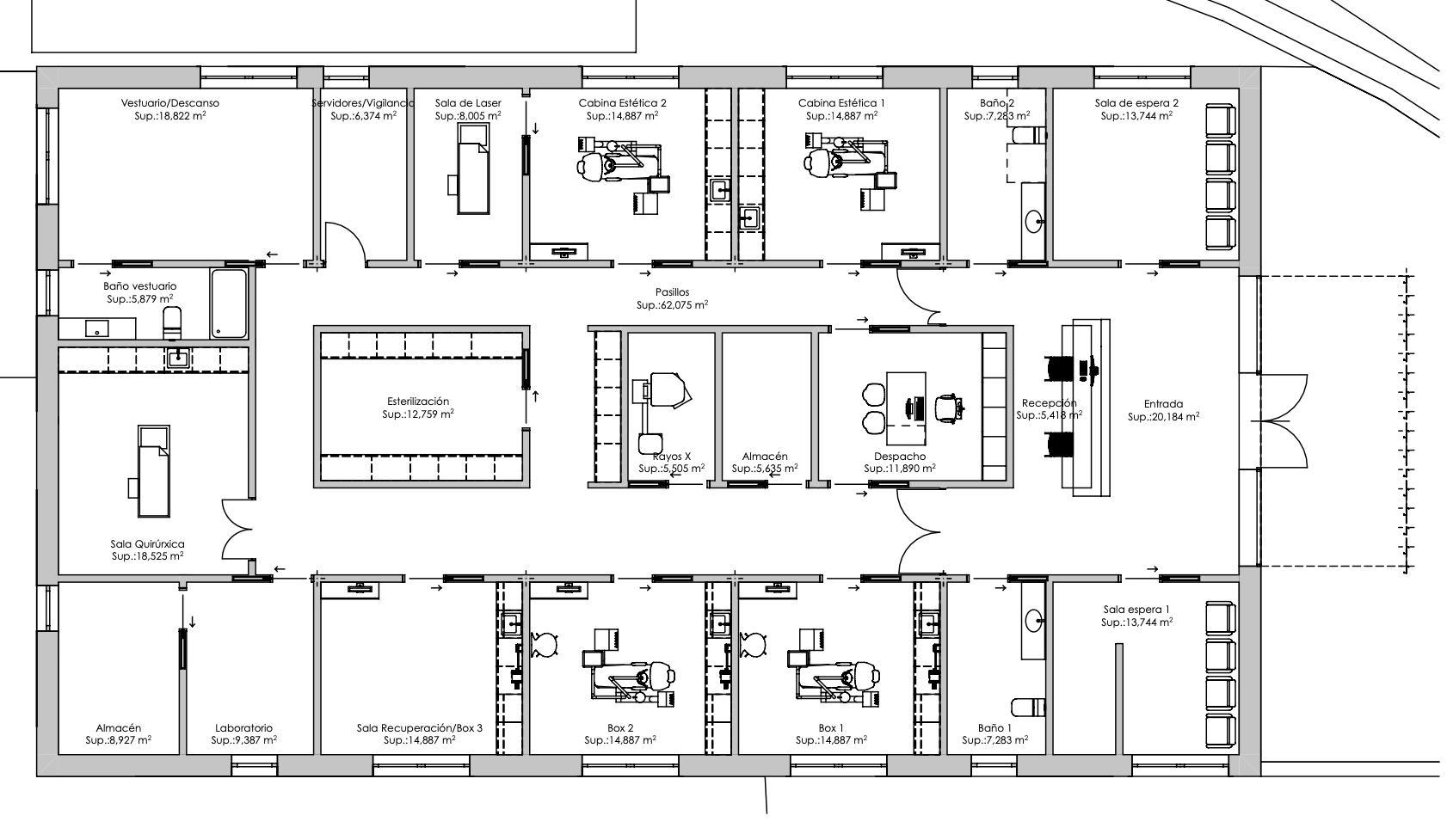
convert this floor plan into a realistic isometric 3d view of a office show the space from an elevated angle with furniture walls and details visible modern dental clinic building with traditional materials and a iluminated and white indoor use the same furniture as shows on the plan do not change the orientation of the floorplan