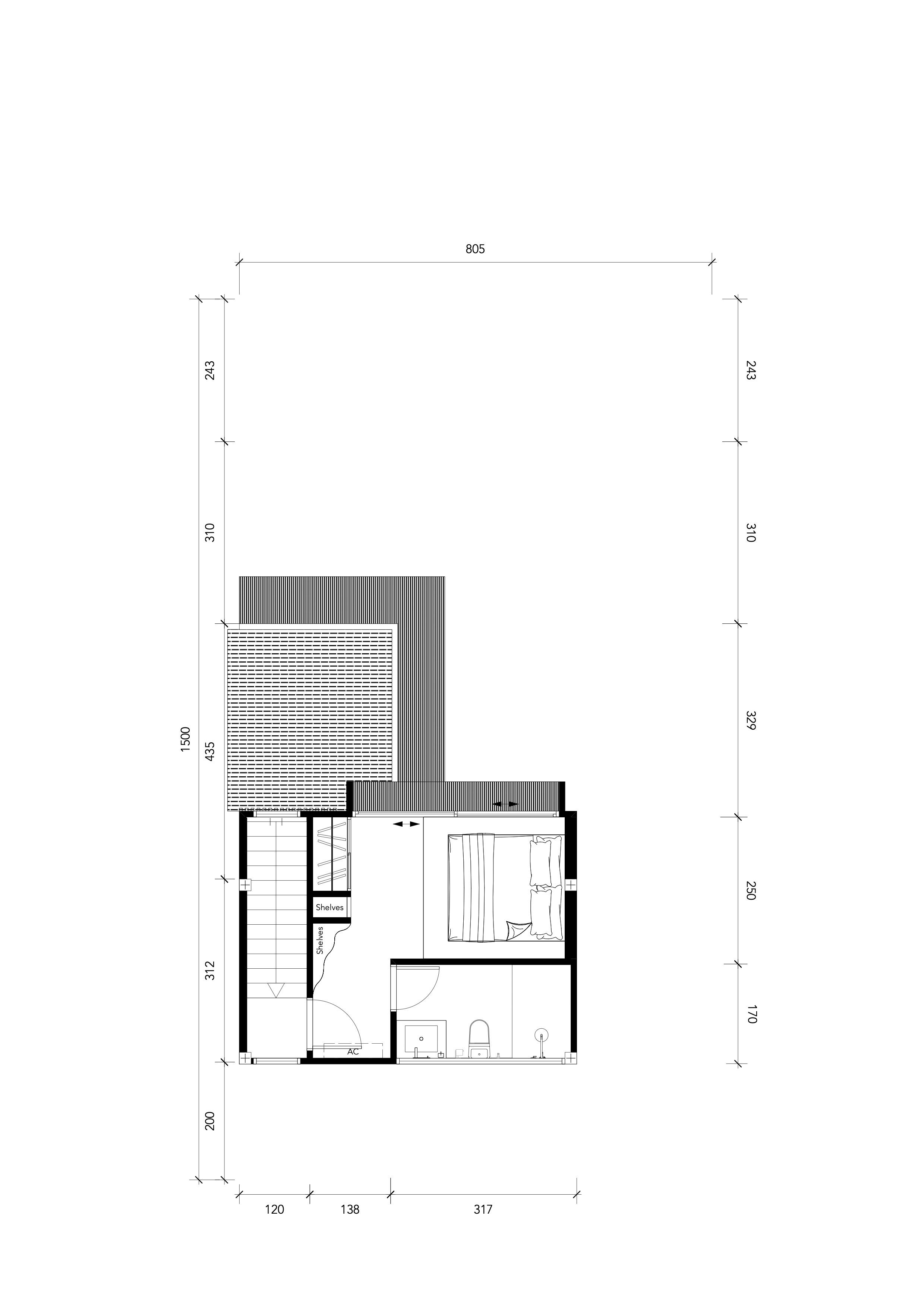
enhance this top down architectural floor plan with highly realistic materials and textures while strictly keeping the plan view representation style very important keep the image as a top down floor plan architectural plan view do not convert the image into a perspective render or interior scene maintain the exact layout walls furniture placement and dimensions the result should look like a high end real estate floor plan with photorealistic materials rendering quality make the materials look very realistic with natural lighting and soft shadows realistic texture depth subtle ambient occlusion high resolution materials floor clarification this image represents the second floor the first floor visible in the background is only contextual and must not be redesigned or interpreted as the main level enhance only the second floor containing the bedroom and bathroom stairs stairs should be matte light concrete same tone as the lower floor bedroom the bed sits on a slightly raised platform platform integrated into the architecture use warm neutral tones beige warm grey wardrobe wardrobe structure in light concrete interior shelves in natural wood shelves the niches next to the wardrobe are wooden shelves with warm wood tones bathroom bathroom surfaces in warm matte concrete tones shower only the shower area uses tiles tiles should be warm beige sand colored natural look final result the final image should look like a premium developer floor plan with photorealistic materials realistic textures and soft shadows while remaining a clean top down architectural plan no layout changes no perspective view no redesign style reference real estate marketing floor plan photorealistic top down materials architectural visualization