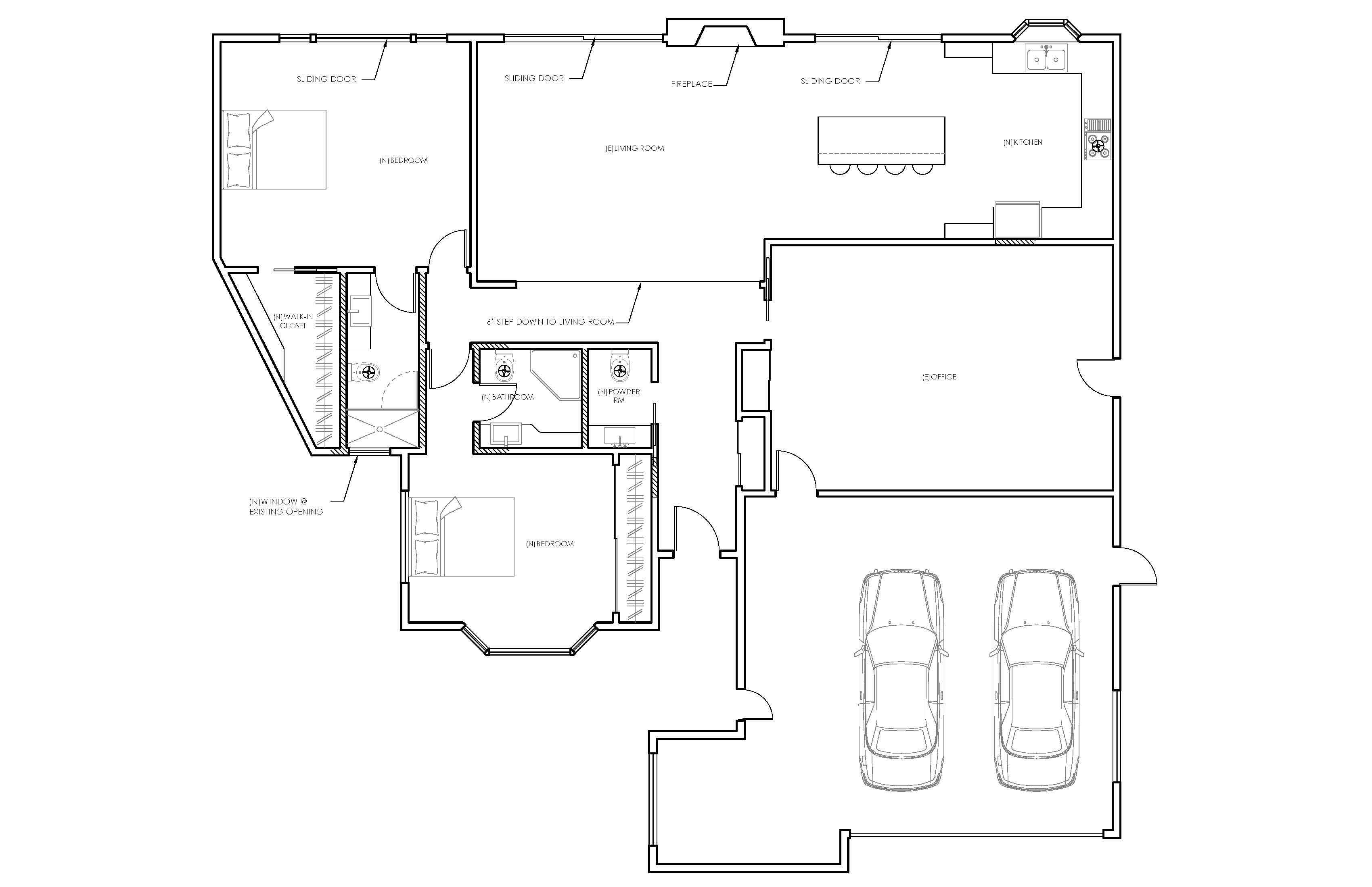
convert this floor plan into a realistic isometric 3d view of a full house show the space from an elevated angle with furniture walls and details visible use modern grey and beige tone furniture laminate flooring in bedrooms kitchen living room and office concrete floor in parking garage grey tile in bathrooms tile showers and brick fire place use solid white surface outside the house with no furniture or added objects use the same furniture as shows on the plan do not change the orientation of the floorplan