archsynth
Sign Up
Open main menu
Image to 3d model
Compare
Testimonials
Contact us
Log in
→
Signup
Archsynth generation
Input image
Copy Prompt
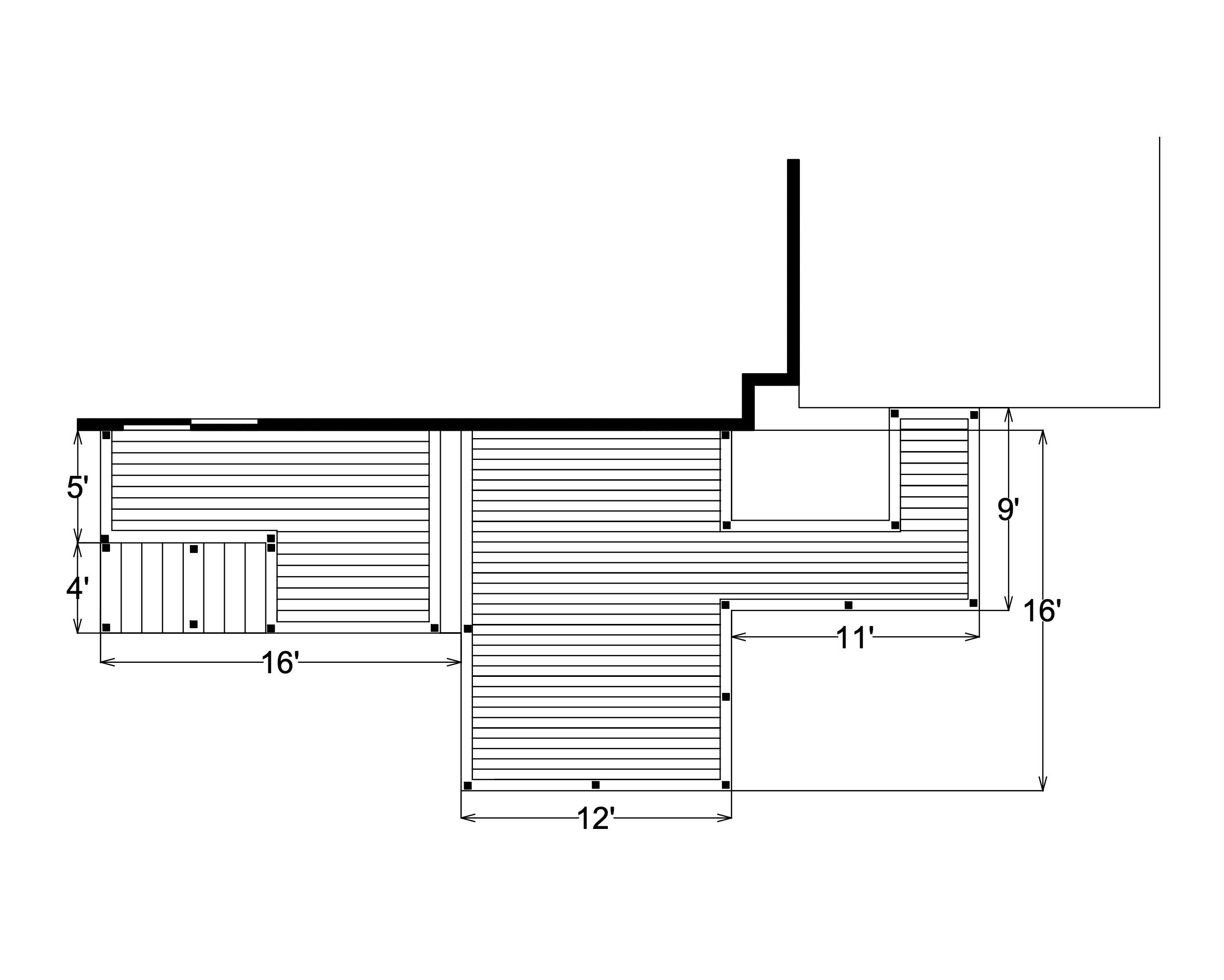
zaha hadid aerial shot create a deck model based on this aerial perspective drawing the dark line is indicating the house the right portion of the deck is 5 off of the ground and the left portion with the steps is 6 2 off of the ground architecture
by Architect
strength 75
seed 7401
Start Creating Renders Now
Related Posts
Start Creating Renders Now
View more