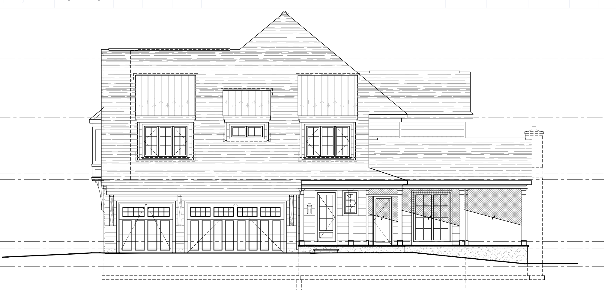
convert the sketch into a photorealistic image while maintaining all original architectural lines and structure make the following changes remove all wood corbels and support brackets from beneath the garage eaves apply white siding across the entire elevation use an all black roof including shingles fascia and trim as appropriate set all garage doors to white to match the siding add three large black wall sconces one before the double garage door one between the double and single garage doors after the double one after the single garage door maintain clean realistic lighting and shadows to enhance the photorealistic quality