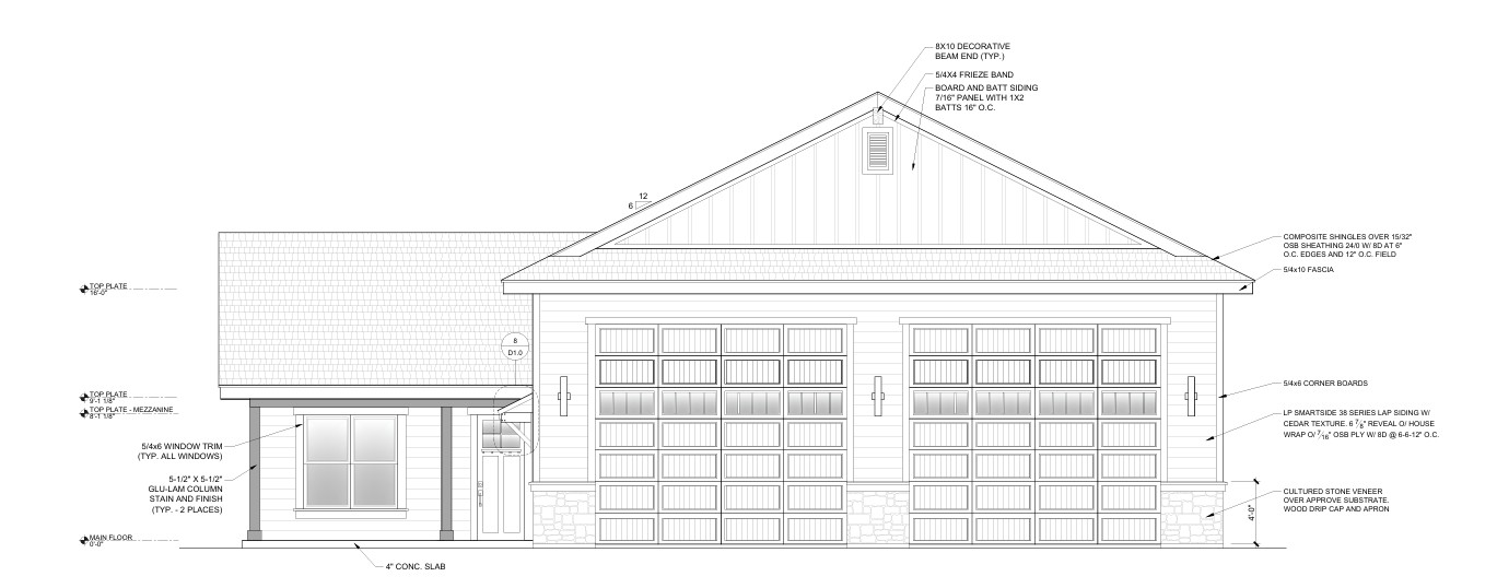
render this elevation of a shop the wood posts and beam at the porch should be stained wood as well as the beam at the ridge of the shop make the siding a greyish green color with a dark colored trim and fascia do not change the proportions or architecture or rooflines of the building or add any elements