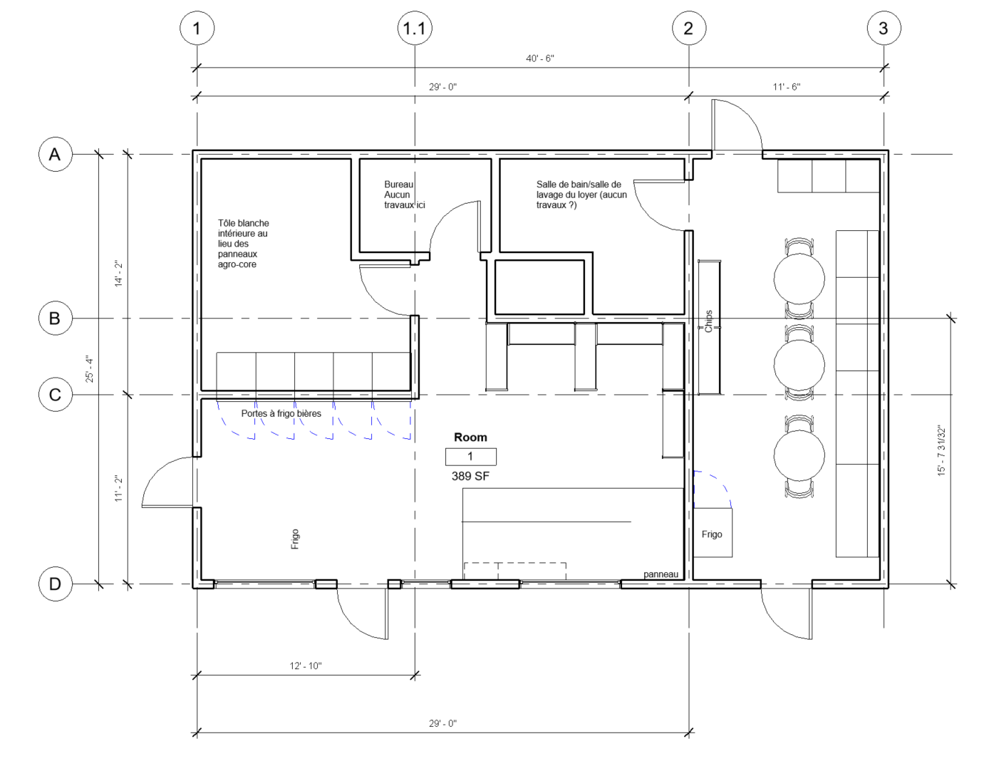
je suis entrepreneur g n ral et nous r novons un d panneur pr sentement j aimerais mod liser l int rieur de ce d panneur avec des panneaux muraux vertical trusscore rev tement de planchers en vinyle coll commercial mod le capstone gris mabr tous les plafonds auront 10 pi de haut comme sur la section la plus haute de cette photo les plafonds seront en tuiles suspendus mod le encore de mur design 24po x 24po avec lumi re del int gr au plafonds suspendus