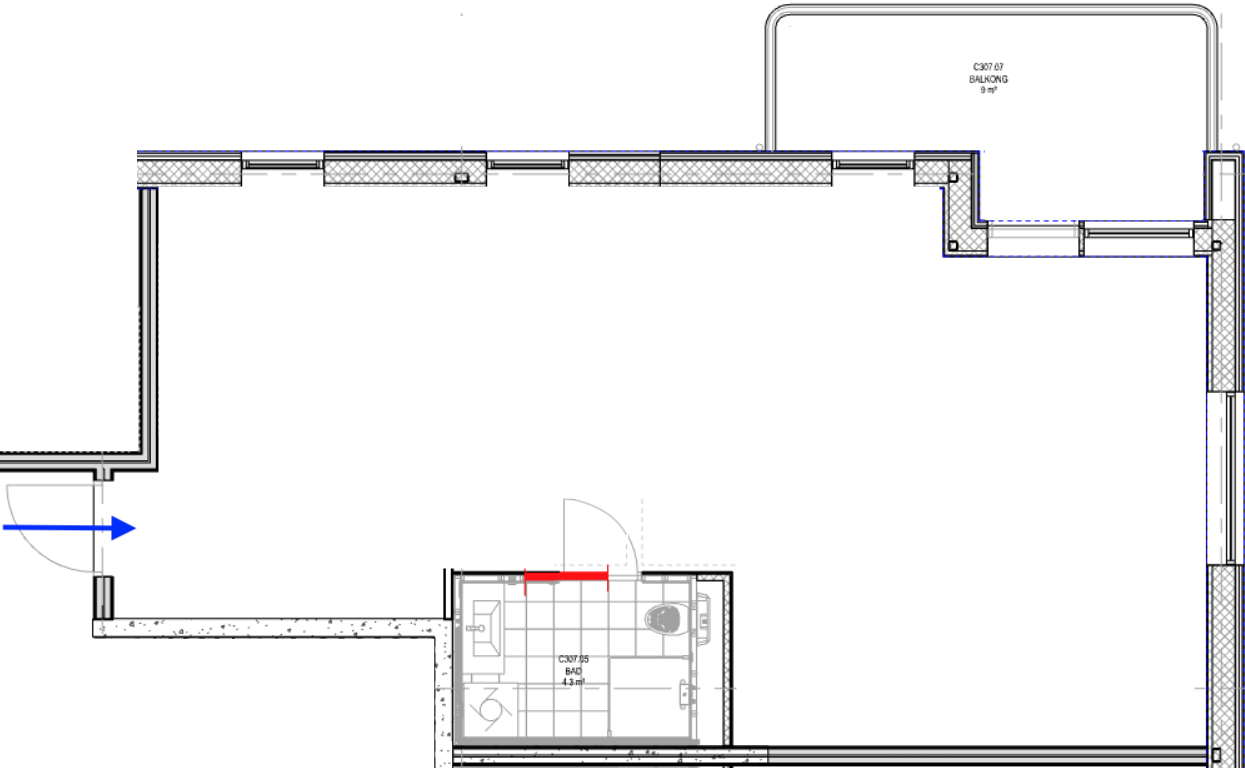
interior from the top convert this floor plan into a realistic isometric 3d view of a full house show the space from an elevated angle with furniture walls and details visible create a 2 5d isometric furnished apartment layout and interior visualization based on the uploaded floor plan sketch important instructions use the outer apartment boundary exactly as shown keep the bathroom in its current location and size exactly as drawn ignore the red line inside the bathroom area it is not part of the final design keep the balcony in its current position windows are floor to ceiling create a new interior layout within the apartment shell layout requirements design the apartment with one large bedroom and one small bedroom create an open plan living room and kitchen in the remaining main space ensure the layout feels logical spacious and functionalkeep a natural circulation from the entrance to bedrooms bathroom and main living areasuggested zoning place the large bedroom in the quieter part of the apartment with enough space for a double bed and wardrobeplace the small bedroom as a compact bedroom guest room or home office bedroom let the main open plan living room kitchen occupy the brightest and largest part of the apartment with good connection to the balcony interior style warm modern nordic scandinavian style light oak wood flooring in dry areas warm off white walls soft palette of beige sand greige taupe and natural wood tones clean lined scandinavian furniture natural materials such as oak linen wool and matte stoneadd some green indoor plants for warmth and liveliness kitchen living area elegant open kitchen with integrated appliances light oak or warm painted kitchen fronts light stone countertop dining table for 4 6 people comfortable sofa coffee table rug and soft styling make the room feel bright welcoming and spaciouslarge bedroom double bedwardrobe storagewarm and calm nordic stylingsoft textiles and minimal decorsmall bedroom compact but attractive layout single bed or flexible guest room office solutionclean and functional scandinavian designbathroom keep bathroom exactly where it is style it with light stone look tiles floating vanity wall hung toilet and clean nordic detailing lighting and mood soft natural daylight warm interior lighting bright but cozy atmosphere rendering style top down isometric axonometric 2 5d viewrealistic architectural visualization calm elegant brochure friendly presentation avoid heavy furnitures in front of the ceiling height windows moving the bathroom using the red line as part of the design dark interiors industrial style glossy materials cluttered furniture layouts the blue arrow indicates the entry point to the apartment use the same furniture as shows on the plan do not change the orientation of the floorplan architecture