archsynth
Sign Up
Open main menu
Image to 3d model
Compare
Testimonials
Contact us
Log in
→
Signup
Archsynth generation
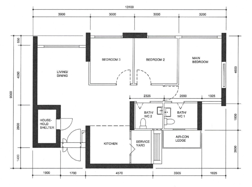
Input image
Copy Prompt
generate a 3d model from this 2d architectural floor plan with walls stairs and doors aligned to the plan export in fbx format for sketchup
Maintain Colors (v2)
strength 75
seed 1107
Start Creating Renders Now
Related Posts
Start Creating Renders Now
View more