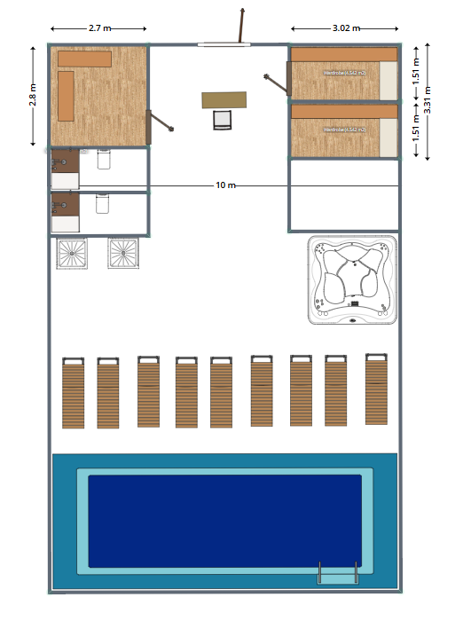
convert this floor plan into a realistic isometric 3d view of a full house show the space from an elevated angle with furniture walls and details visible in stanga sus fa sauna de 6 8 persoane in dreapta camera 1 vestiare femei camera 2 vestiar barbati camera 3 sauna umeda 3d minimalist respecta planul nu adauga nici o in capere use the same furniture as shows on the plan do not change the orientation of the floorplan